Bénéficiez des services de nos partenaires locaux soigneusement sélectionnés
pour vous accompagner dans votre parcours d'achat immobilier

Maison 123 m² à Bonneuil-Sur-Marne

— Bonneuil-Sur-Marne 94380 —
378 000 €
123 m² / 307 m²
5 pièces
parkingbalcon/terrassejardin

Nos partenaires locaux
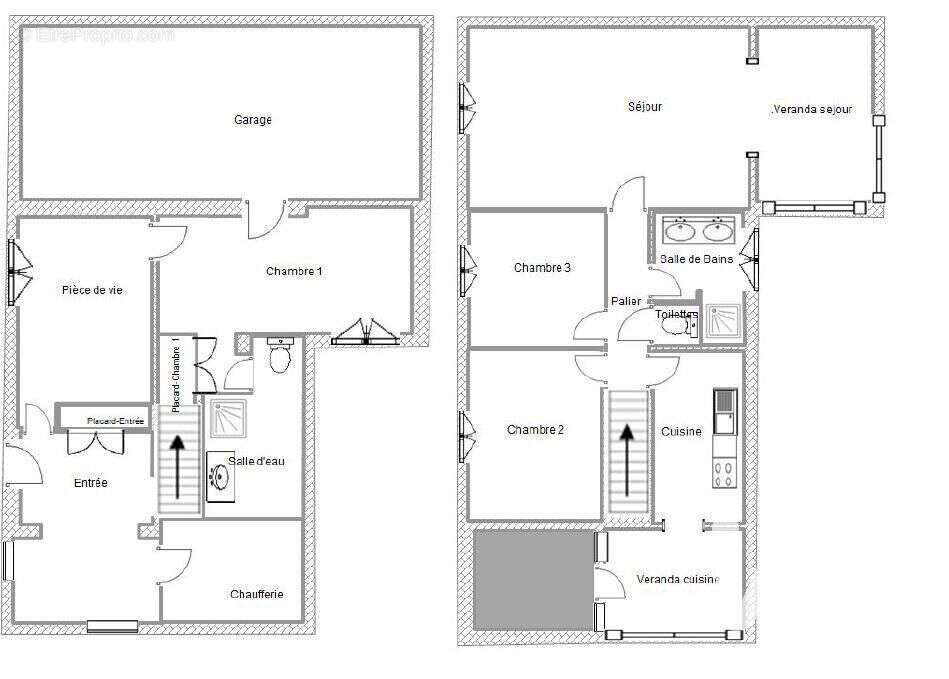
Iad France - Lisa Amghar vous propose : Située dans le quartier prisé du Haut de Bonneuil, cette maison familiale de 124 m² de surface habitable avec un grand garage de 33 m². sur 307 m² de terrain offre luminosité, calme et potentiel d'évolution avec la possibilité de créer un étage supplémentaire. Au rez-de-chaussée : entrée, 2 pièces modulables (chambre, bureau, ou espace adolescent), salle d'eau avec WC, buanderie et grand garage de 33 m². À l'étage : double séjour lumineux 31 m², deux chambres, cuisine fonctionnelle prolongée par une véranda avec accès au balcon, salle d'eau et WC séparé. Extérieur : grande cour aménagée et jardin arboré - parfaits pour profiter des beaux jours en toute tranquillité. Les atouts : Quartier résidentiel calme et recherchéMaison évolutive, adaptable à vos besoinsProche écoles, commerces. ConservatoireTransports faciles : bus 104,117, 308 à 5 mn à pied, Metro 8 pointe du lac et téléphérique C1 à 12 min de marche RER A Sucy-en-Brie à 10 min en bus, RER D Créteil Pompadour à 12 min en bus Laissez-vous séduire par le potentiel de cette maison et contactez-moi pour une visite dès maintenant ! Honoraires d'agence à la charge du vendeur. Information d'affichage énergétique sur ce bien : classe ENERGIE F indice 371 et classe CLIMAT F indice 85. Les informations sur les risques auxquels ce bien est exposé, y compris l'obligation légale de débroussaillement, sont disponibles sur le site Géorisques : http://www.georisques.gouv.fr.La présente annonce immobilière a été rédigée sous la responsabilité éditoriale de Mme Lisa Amghar mandataire indépendant en immobilier (sans détention de fonds), agent commercial de la SAS I@D France immatriculé au RSAC de CRETEIL sous le numéro 910924620, titulaire de la carte de démarchage immobilier pour le compte de la société I@D France SAS.Informations LOI ALUR : Honoraires charge vendeur. (gedeon_6727_31792896)
Voir plus

Référence: 1833172
Honoraires à la charge du vendeur.
Barème des honoraires
DPE
A
B
C
D
E
F
G
GES
A
B
C
D
E
F
G
Photo 1 - Maison à BONNEUIL-SUR-MARNE
Photo 1
Photo 2 - Maison à BONNEUIL-SUR-MARNE
Photo 2
Photo 3 - Maison à BONNEUIL-SUR-MARNE
Photo 3
Photo 4 - Maison à BONNEUIL-SUR-MARNE
Photo 4
Photo 5 - Maison à BONNEUIL-SUR-MARNE
Photo 5
Photo 6 - Maison à BONNEUIL-SUR-MARNE
Photo 6
Photo 7 - Maison à BONNEUIL-SUR-MARNE
Photo 7
Photo 8 - Maison à BONNEUIL-SUR-MARNE
Photo 8
Photo 9 - Maison à BONNEUIL-SUR-MARNE
Photo 9
Géorisques

Les informations sur les risques auxquels ce bien est exposé sont disponibles sur le site Géorisques : www.georisques.gouv.fr

Ce site est protégé par hCaptcha Politique de confidentialité et Conditions d’utilisation s’appliquent.

En poursuivant votre navigation sans modifier vos paramètres, vous acceptez l'utilisation de cookies susceptibles de réaliser des statistiques de visite. Cliquez ici pour plus d'informations