Bénéficiez des services de nos partenaires locaux soigneusement sélectionnés
pour vous accompagner dans votre parcours d'achat immobilier

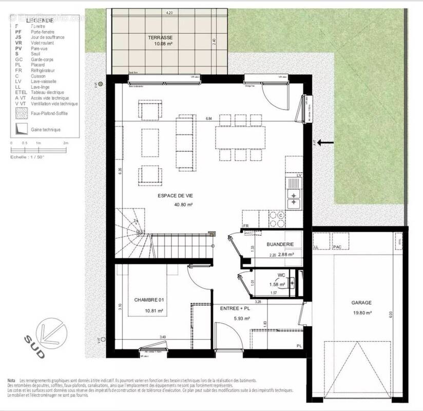
Maison de 122m2 avec 4 chambres

— Mesigny 74330 —
569 000 €
122 m²
5 pièces

Nos partenaires locaux
Sur la jolie commune de Mesigny, cette maison mitoyenne est dans un état irréprochable. Elle est composée d'un salon avec cuisine ouverte d'une surface de 41m2 donnant sur une terrasse avec une belle vue dégagée sur la campagne environnante, idéale pour les repas en famille. En complément et bien pratique, vous trouverez une buanderie pour toutes vos lessives. Sur le même niveau se trouve un bureau ou chambre d'amis.
Au niveau supérieur, vous apprécierez une suite parentale comprenant sa propre salle-d'eau et son dressing, ainsi que 2 autres belles chambres qui se partagent l'espace. Elles bénéficient d'une salle de bains et de toilettes séparés.
Les carrelages et parquets ont été choisis dans une sélection haut-de-gamme, avec des teintes modernes et neutres.
L'espace extérieur est entièrement clos et arboré.
Le garage est attenant à la maison par une porte isolée. Il est aussi possible de stationner 2 véhicules devant la maison.
Proche de l'école maternelle et primaire à pied par un sentier sécurisé qui évite au maximum d'emprunter les routes. Mesigny est une jolie commune, au calme, à 30mins d'Annecy.
Je me tiens à disposition pour vous organiser une visite de cette jolie maison.
Voir plus

Référence: 20210473-20-74-MA17-AC
Barème des honoraires
DPE
A
B
C
D
E
F
G
GES
A
B
C
D
E
F
G

Prêt immobilier

Vous souhaitez connaître votre capacité d’emprunt et trouver le meilleur crédit immobilier ?
Réaliser une simulation gratuite

Maison à MESIGNY
Maison à MESIGNY
Maison à MESIGNY
Maison à MESIGNY
Maison à MESIGNY
Maison à MESIGNY
Maison à MESIGNY
Maison à MESIGNY
Ce site est protégé par reCAPTCHA la Politique de confidentialité et les Conditions d’utilisation de Google s’appliquent.
Obtenir un prêt immobilier au meilleur taux ?

En poursuivant votre navigation sans modifier vos paramètres, vous acceptez l'utilisation de cookies susceptibles de réaliser des statistiques de visite. Cliquez ici pour plus d'informations