Bénéficiez des services de nos partenaires locaux soigneusement sélectionnés
pour vous accompagner dans votre parcours d'achat immobilier

Exclusivité - maison récente - montchat

— Lyon-3e 69003 —
927 000 €
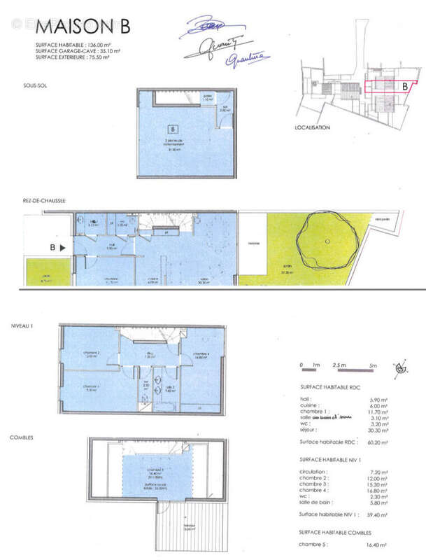
136 m² / 76 m²
6 pièces
balcon/terrassejardin

Nos partenaires locaux
Maison récente avec jardin et terrasse - Montchat Idéalement située au coeur de Montchat, cette maison moderne sur 3 niveaux vous séduira par son confort et sa luminosité. Elle se compose de : -Rez-de-chaussée : une entrée ouvrant sur une belle pièce de vie avec cuisine ouverte, donnant accès à une terrasse et un jardin intime sans vis-à-vis, une chambre ainsi qu'une salle d'eau, WC. -Étage : trois chambres supplémentaires, une salle de bains et des WC indépendants. -Dernier niveau : un espace polyvalent pouvant servir de bureau ou de chambre, prolongé par une grande terrasse ensoleillée. Un grand garage en sous-sol, accessible directement depuis la maison, vient compléter ce bien rare sur le secteur. Maison récente, prestations modernes au coeur de Montchat proche de la Place du Château. Pour organiser une visite ou obtenir plus d'informations, n'hésitez pas à me contacter MARVIN MIRO [Coordonnées masquées] Copropriété de 6 lots - dont 6 lots habitation. (Pas de procédure en cours). Charges annuelles : 1540 euros.
Voir plus

Bien en copropriété. Nombre de lots : 6. Charges de copropriété : 1540 €.
Barème des honoraires
DPE
A
B
C
D
E
F
G
GES
A
B
C
D
E
F
G

Prêt immobilier

Vous souhaitez connaître votre capacité d’emprunt et trouver le meilleur crédit immobilier ?
Réaliser une simulation gratuite

Maison à LYON-3E
Maison à LYON-3E
Maison à LYON-3E
Maison à LYON-3E
Maison à LYON-3E
Maison à LYON-3E
Maison à LYON-3E
Maison à LYON-3E
Maison à LYON-3E
Maison à LYON-3E
Maison à LYON-3E
Maison à LYON-3E
Maison à LYON-3E
Maison à LYON-3E
Maison à LYON-3E
Maison à LYON-3E
Maison à LYON-3E
Maison à LYON-3E
Ce site est protégé par reCAPTCHA la Politique de confidentialité et les Conditions d’utilisation de Google s’appliquent.
Obtenir un prêt immobilier au meilleur taux ?

En poursuivant votre navigation sans modifier vos paramètres, vous acceptez l'utilisation de cookies susceptibles de réaliser des statistiques de visite. Cliquez ici pour plus d'informations