Bénéficiez des services de nos partenaires locaux soigneusement sélectionnés
pour vous accompagner dans votre parcours d'achat immobilier

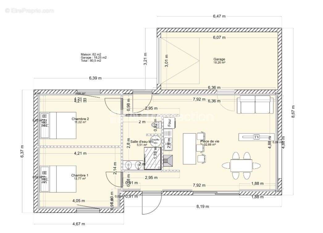
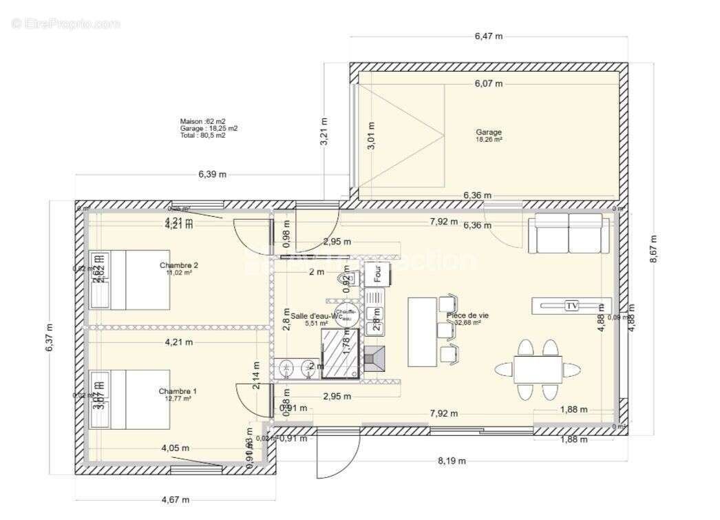
Maison 62 m² à Lutzelhouse

— Lutzelhouse 67130 —
308 525 €
62 m² / 1 100 m²
4 pièces
parkingjardin

Nos partenaires locaux
Nichée au cœur du charmant village de Lutzelhouse, cette maison familiale de construction neuve est une véritable pépite prête à vous accueillir. Ce maison de plein pied avec ses 80 m2 garage inclus, elle a tout pour séduire les familles en quête de tranquillité sans renoncer aux commodités modernes.

Voici ce que vous propose cette ravissante demeure :

- Une pièce de vie spacieuse incluant un grand salon salle à manger baigné de lumière naturelle, idéal pour les moments de convivialité en famille ou entre amis.
- Deux belles chambres.
- Une salle de bain avec un WC.
- Un garage privatif.
- Un terrain généreux de 1100 m², parfait pour un jardin, un espace de jeux pour enfants ou encore des réceptions en plein air lors des beaux jours.
- Un système de chauffage pompe a chaleur avec chauffage au sol au RDC, volets électriques, porte motorisée du garage...etc...

Par ailleurs, le quartier paisible de Lutzelhouse vous offre :

- Une proximité avec des écoles de qualité et de nombreux commerces pour vous simplifier la vie au quotidien.
- La possibilité de partir à la découverte de magnifiques paysages naturels avec de nombreuses randonnées disponibles à proximité.

Sans oublier : cette maison vous propose une vue panoramique exceptionnelle sur la nature environnante, pour des moments de contemplation ou simplement pour profiter du confort de votre nouvelle demeure.

Prix de vente : 333.890€ € (hors frais de notaire).

N'attendez plus pour visiter ce bien rare sur le marché et commencez à imaginer la vie que vous pourriez y construire. Pour toute question, n'hésitez pas à me téléphoner ou à m'envoyer vos coordonnées afin que je puisse vous rappeler au plus vite. Je suis ici pour transformer ce rêve en réalité. À très vite pour une visite !

Dossier géré par l’agent commercial de l’immobilier Vincent MIESZKOWSKI du réseau AV TRANSACTION.
N°RCS : 818 664 112
Mandat de vente N° 13410
Prix avec la maison parcelle inclus hors frais de notaire 308.525€
PRIX de la parcelle de terrain seul : 149.557€ (dont 3.5% de frais d’agence charge acquéreur)
Hors honoraire : 144.500€ net vendeur.




Honoraires 1.67 % TTC inclus charge acquéreur (303 468,00 € hors honoraires).

« Les informations sur les risques auxquels ce bien est exposé sont disponibles sur le site Géorisques : www.georisques.gouv.fr »

AV TRANSACTION
Vincent MIESZKOWSKI
[Coordonnées masquées]
Votre agent commercial et conseiller(e) spécialiste en immobilier
RSAC N° 818 664 112 (EI)
Ville du greffe : Strasbourg

Plus d'informations sur notre site av-transaction immo - Référence: 7501818628
Le réseau AV Transaction recrute des agents commerciaux dans toute la France. Percevez 100% de vos commissions. avtransaction-recrutement fr.

Voir plus

Référence: 7501818628
Honoraires d'agence de 1.67% à la charge de l'acquéreur
Barème des honoraires
Maison à LUTZELHOUSE
Maison à LUTZELHOUSE
Maison à LUTZELHOUSE
Maison à LUTZELHOUSE
Maison à LUTZELHOUSE
Maison à LUTZELHOUSE
Maison à LUTZELHOUSE
Maison à LUTZELHOUSE
Maison à LUTZELHOUSE
Maison à LUTZELHOUSE
Maison à LUTZELHOUSE
Maison à LUTZELHOUSE
Maison à LUTZELHOUSE
Maison à LUTZELHOUSE
Maison à LUTZELHOUSE
Maison à LUTZELHOUSE
Maison à LUTZELHOUSE
Maison à LUTZELHOUSE
Maison à LUTZELHOUSE
Maison à LUTZELHOUSE
Maison à LUTZELHOUSE
Maison à LUTZELHOUSE
Maison à LUTZELHOUSE
Maison à LUTZELHOUSE
Maison à LUTZELHOUSE
Maison à LUTZELHOUSE
Maison à LUTZELHOUSE
Maison à LUTZELHOUSE
Maison à LUTZELHOUSE
Maison à LUTZELHOUSE
Maison à LUTZELHOUSE
Maison à LUTZELHOUSE
Maison à LUTZELHOUSE
Maison à LUTZELHOUSE
Maison à LUTZELHOUSE
Maison à LUTZELHOUSE
Maison à LUTZELHOUSE
Maison à LUTZELHOUSE
Maison à LUTZELHOUSE
Maison à LUTZELHOUSE
Maison à LUTZELHOUSE
Maison à LUTZELHOUSE
Maison à LUTZELHOUSE
Maison à LUTZELHOUSE
Maison à LUTZELHOUSE
Maison à LUTZELHOUSE
Maison à LUTZELHOUSE
Maison à LUTZELHOUSE
Maison à LUTZELHOUSE
Maison à LUTZELHOUSE
Maison à LUTZELHOUSE
Maison à LUTZELHOUSE
Maison à LUTZELHOUSE
Maison à LUTZELHOUSE
Maison à LUTZELHOUSE
Maison à LUTZELHOUSE
Maison à LUTZELHOUSE
Maison à LUTZELHOUSE
Maison à LUTZELHOUSE
Maison à LUTZELHOUSE
Maison à LUTZELHOUSE
Maison à LUTZELHOUSE
Maison à LUTZELHOUSE
Maison à LUTZELHOUSE
Maison à LUTZELHOUSE
Maison à LUTZELHOUSE
Maison à LUTZELHOUSE
Maison à LUTZELHOUSE
Maison à LUTZELHOUSE
Maison à LUTZELHOUSE
Maison à LUTZELHOUSE
Maison à LUTZELHOUSE
Maison à LUTZELHOUSE
Maison à LUTZELHOUSE
Maison à LUTZELHOUSE
Maison à LUTZELHOUSE
Maison à LUTZELHOUSE
Maison à LUTZELHOUSE
Maison à LUTZELHOUSE
Maison à LUTZELHOUSE
Maison à LUTZELHOUSE
Maison à LUTZELHOUSE
Maison à LUTZELHOUSE
Maison à LUTZELHOUSE
Maison à LUTZELHOUSE
Maison à LUTZELHOUSE
Maison à LUTZELHOUSE
Maison à LUTZELHOUSE
Maison à LUTZELHOUSE
Maison à LUTZELHOUSE
Maison à LUTZELHOUSE
Maison à LUTZELHOUSE
Maison à LUTZELHOUSE
Maison à LUTZELHOUSE
Géorisques

Les informations sur les risques auxquels ce bien est exposé sont disponibles sur le site Géorisques : www.georisques.gouv.fr

Ce site est protégé par hCaptcha Politique de confidentialité et Conditions d’utilisation s’appliquent.