Bénéficiez des services de nos partenaires locaux soigneusement sélectionnés
pour vous accompagner dans votre parcours d'achat immobilier

Voir tous les partenaires locaux

Bureaux professions liberales ecole militaire

— Paris-7e 75007 —
730 000 €
62 m²
4 pièces

Nos partenaires locaux
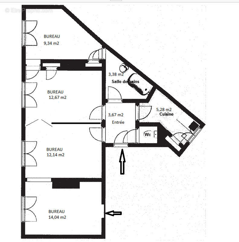
EXCLUSIVITE. A 3 MN A PIED DU METRO ECOLE MILITAIRE. RUE CHEVERT. Dans une copropriété signée de 1860 bien entretenue et calme, un espace de BUREAUX (pour professions libérales uniquement) en rez-de-chaussée d'une surface carrez de 62 m2 offrant une entrée, 4 bureaux, une cuisine indépendante, sanitaires, WC séparés. Aucune perte de place. Un bureau peut avoir un ACCES INDEPENDANT par le hall principal de l'immeuble. Parquet, 3 m de hauteur sous plafond, cheminées. Une cave située sous l'appartement. DPE E. Charges annuelles de copropriété de 1.680 euros. Copropriété de 25 lots principaux. Pas de procédure en cours. Contact direct [Coordonnées masquées] Muriel Garnreiter (E.I) [Coordonnées masquées], RSAC 2018AC00169. (3.84 % honoraires TTC à la charge de l'acquéreur.) Copropriété de 25 lots (). (RDC) Muriel GARNREITER (EI) Agent Commercial - Numéro RSAC : - .
Voir plus

Bien en copropriété. Nombre de lots : 25.
Honoraires d'agence de 3.84% à la charge de l'acquéreur
Barème des honoraires
DPE
A
B
C
D
E
F
G
GES
A
B
C
D
E
F
G

Prêt immobilier

Vous souhaitez connaître votre capacité d’emprunt et trouver le meilleur crédit immobilier ?
Réaliser une simulation gratuite

Commerce à PARIS-7E
Commerce à PARIS-7E
Commerce à PARIS-7E
Commerce à PARIS-7E
Commerce à PARIS-7E
Commerce à PARIS-7E
Commerce à PARIS-7E
Commerce à PARIS-7E
Ce site est protégé par reCAPTCHA la Politique de confidentialité et les Conditions d’utilisation de Google s’appliquent.
Obtenir un prêt immobilier au meilleur taux ?

En poursuivant votre navigation sans modifier vos paramètres, vous acceptez l'utilisation de cookies susceptibles de réaliser des statistiques de visite. Cliquez ici pour plus d'informations