Bénéficiez des services de nos partenaires locaux soigneusement sélectionnés
pour vous accompagner dans votre parcours d'achat immobilier

Ancienne ferme à rénover entre chasselay et anse

— Les Cheres 69380 —
275 000 €
200 m²
6 pièces

Nos partenaires locaux
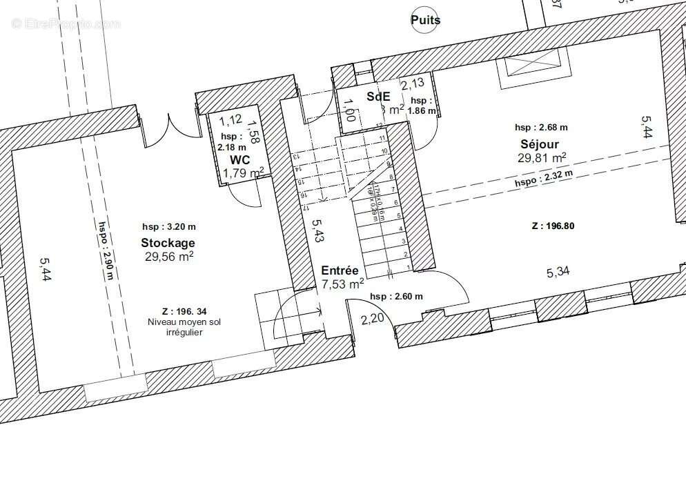
Exclusivité Yannick SAUVIGNET - Entre Chasselay et Anse... Exposition plein sud, environnement champêtre et calme assuré pour votre projet de rénovation dans une ancienne ferme de plus de 200 m² habitables répartis sur 3 niveaux.

Jardin privatif arboré sur parcelle plate de 500 m² environ.

Accès direct chemin pédestre ou vtt...

Vendu avec autorisations administratives obtenues pour l'ensemble des ouvertures à modifier ou à créer.
Possibilité d'un accompagnement dans votre projet de rénovation avec un de nos partenaires locaux à la réputation certifiée.

A 500 m de l'école et des commodités, 4 km de la gare de Quincieux, 5 km de la gare de St Germain et Anse, 9 km de l'accès A6 Portes de Lyon,15 km de LYON.

Pour tous renseignements complémentaires ou visite, et pour bénéficier de conseils pertinents, avec près de 400 biens vendus sur les secteurs rurbains Lyonnais, des Monts d'Or à la Calade, du Val de Saône aux Pierres Dorées, de la Vallée d'Azergues au Beaujolais... Vous pouvez contacter Yannick SAUVIGNET au [Coordonnées masquées], statut salarié, dirigeant.

Les informations sur les risques auxquels ce bien est exposé sont disponibles sur le site Géorisques : www.georisques.gouv.fr
Voir plus

Référence: 85973797
Barème des honoraires
DPE
A
B
C
D
E
F
G
GES
A
B
C
D
E
F
G

Prêt immobilier

Vous souhaitez connaître votre capacité d’emprunt et trouver le meilleur crédit immobilier ?
Réaliser une simulation gratuite

Maison à LES CHERES
Maison à LES CHERES
Maison à LES CHERES
Maison à LES CHERES
Maison à LES CHERES
Ce site est protégé par reCAPTCHA la Politique de confidentialité et les Conditions d’utilisation de Google s’appliquent.
Obtenir un prêt immobilier au meilleur taux ?

En poursuivant votre navigation sans modifier vos paramètres, vous acceptez l'utilisation de cookies susceptibles de réaliser des statistiques de visite. Cliquez ici pour plus d'informations