Vente maison castelmaurou(31180) 355 000ᅵ

— Castelmaurou 31180 —
355 000 €
100 m² / 1 780 m²
4 pièces

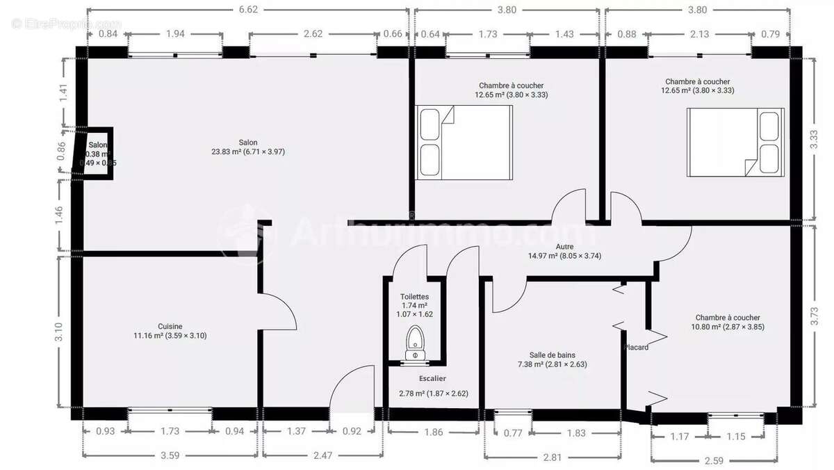
Maison avec sous-sol complet et grand terrain située à castelmaurou, à seulement 15 minutes de toulouse, cette maison familiale développe environ 100 m² habitables et bénéficie d'un garage en sous-sol complet. elle est implantée sur une belle parcelle arborée de 1780 m², offrant un cadre verdoyant et de nombreuses possibilités d'aménagement. l'entrée distribue les différents espaces de vie. un séjour lumineux de 24 m², idéalement orienté et donnant sur le jardin. trois chambres confortables, une salle de bains et un wc indépendant complètent ce niveau. un garage en sous-sol, accessible directement depuis l'intérieur, offre une grande capacité de rangement. il peut également être utilisé comme atelier, un atout appréciable pour un artisan ou toute activité nécessitant de l'espace. le terrain arboré constitue un véritable point fort. il offre un cadre de vie agréable, au calme, et un fort potentiel d'évolution (piscine,, aménagement paysager ou division parcelelaire). des travaux de rénovation sont à prévoir afin de valoriser pleinement ce bien. un devis estimatif a été réalisé et pourra être communiqué sur demande, au même titre que l'audit énergétique, les plans 2d et 3d. une visite virtuelle est également disponible pour une première découverte à distance. dans un environnement calme, proche des commerces, des écoles et des transports.
Voir plus

Référence: 85958315
DPE
A
B
C
D
E
F
G
GES
A
B
C
D
E
F
G

Prêt immobilier

Vous souhaitez connaître votre capacité d’emprunt et trouver le meilleur crédit immobilier ?
Réaliser une simulation gratuite

Maison à CASTELMAUROU
Maison à CASTELMAUROU
Maison à CASTELMAUROU
Maison à CASTELMAUROU
Maison à CASTELMAUROU
Maison à CASTELMAUROU
Maison à CASTELMAUROU
Maison à CASTELMAUROU
Ce site est protégé par reCAPTCHA la Politique de confidentialité et les Conditions d’utilisation de Google s’appliquent.
Obtenir un prêt immobilier au meilleur taux ?

En poursuivant votre navigation sans modifier vos paramètres, vous acceptez l'utilisation de cookies susceptibles de réaliser des statistiques de visite. Cliquez ici pour plus d'informations