Bénéficiez des services de nos partenaires locaux soigneusement sélectionnés
pour vous accompagner dans votre parcours d'achat immobilier

Appartement 1300 m² à Saint-Maixent-L'ecole

— Saint-Maixent-L'ecole 79400 —
1 322 990 €
1 300 m²

Nos partenaires locaux
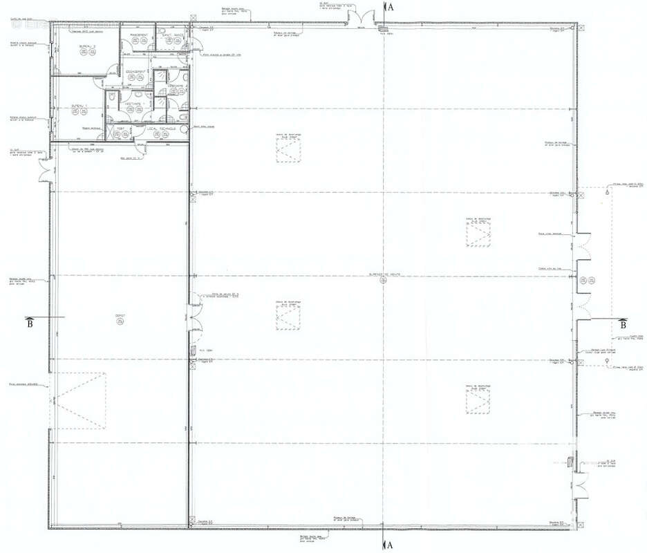
Iad France - Ludovic Seguy vous propose : Ref 1707414-LS Saint-Maixent-L'école (79400) Local commercial de 1 300 m² composé d'un coin réserve, bureaux et sanitaires pour 300 m². Surface divisible avec deux entrées indépendantes et mur CF modulable. Porte sectionnelle et pourtour du bâtiment accessible pour les livraisons. Terrain avec espace vert et parking stabilisé avec enrobé. Situé sur zone commerciale avec nombreuses enseignes nationales et belle visibilité. Bâtiment récent en très bon état et aux normes prêt à exploiter.

Honoraires d'agence à la charge de l'acquéreur. Prix honoraires inclus : 1322990 euros. Prix hors honoraires : 1260000 euros. Honoraires TTC à la charge de l'acquéreur (5,00% du prix du bien hors honoraires) : 62990 euros.
Bien non soumis au DPE. Les informations sur les risques auxquels ce bien est exposé, y compris l'obligation légale de débroussaillement, sont disponibles sur le site Géorisques : http://www.georisques.gouv.fr.
La présente annonce immobilière a été rédigée sous la responsabilité éditoriale de M Ludovic Seguy mandataire indépendant en immobilier (sans détention de fonds), agent commercial de la SAS I@D France immatriculé au RSAC de Poitiers sous le numéro 843399973, titulaire de la carte de démarchage immobilier pour le compte de la société I@D France SAS.Informations LOI ALUR : Honoraires charge acquéreur. Prix hors honoraires : 1 260 000 ¤. (gedeon_6727_31257076)
Voir plus

Référence: 1707414
Honoraires à la charge de l'acquéreur.
Barème des honoraires
Photo 1 - Appartement à SAINT-MAIXENT-L'ECOLE
Photo 1
Photo 2 - Appartement à SAINT-MAIXENT-L'ECOLE
Photo 2
Photo 3 - Appartement à SAINT-MAIXENT-L'ECOLE
Photo 3
Géorisques

Les informations sur les risques auxquels ce bien est exposé sont disponibles sur le site Géorisques : www.georisques.gouv.fr

Ce site est protégé par hCaptcha Politique de confidentialité et Conditions d’utilisation s’appliquent.