Bénéficiez des services de nos partenaires locaux soigneusement sélectionnés
pour vous accompagner dans votre parcours d'achat immobilier

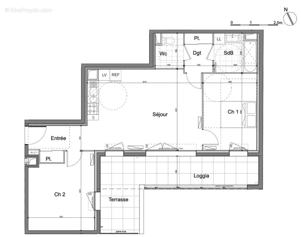
T3 au 3ème étage avec terrasse et parking.

— Aubervilliers 93300 —
303 549 €
66 m²
3 pièces
parkingbalcon/terrasse

Nos partenaires locaux
Découvrez ce bel appartement de 3 pièces situé au 3ème étage. Ce logement offre une surface habitable de 65,61 m2 ainsi qu'une terrasse de 17,80 m2.
Il se compose d’un séjour avec cuisine ouverte de 25,68 m2, ouvrant sur une grande terrasse de 17,80 m2. L’espace nuit comprend deux chambres confortables de 13,34 m2 et 11,58 m2.
Une salle de bain, un WC séparé, une entrée, ainsi qu’un dégagement viennent compléter ce bien.
La résidence, pensée pour le confort de ses habitants, offre un cadre de vie agréable, sécurisé et verdoyant. Les parties communes sont soignées et l’environnement résidentiel apporte une vraie qualité de vie au quotidien.
Contactez-nous pour plus d'informations !
Parking inclus dans le prix
Images d'illustration, non contractuelles
Voir plus

Bien en copropriété. Nombre de lots : 49.
Barème des honoraires
DPE
A
B
C
D
E
F
G
GES
A
B
C
D
E
F
G

Prêt immobilier

Vous souhaitez connaître votre capacité d’emprunt et trouver le meilleur crédit immobilier ?
Réaliser une simulation gratuite

Appartement à AUBERVILLIERS
Appartement à AUBERVILLIERS
Appartement à AUBERVILLIERS
Appartement à AUBERVILLIERS
Ce site est protégé par reCAPTCHA la Politique de confidentialité et les Conditions d’utilisation de Google s’appliquent.
Obtenir un prêt immobilier au meilleur taux ?

En poursuivant votre navigation sans modifier vos paramètres, vous acceptez l'utilisation de cookies susceptibles de réaliser des statistiques de visite. Cliquez ici pour plus d'informations