Bénéficiez des services de nos partenaires locaux soigneusement sélectionnés
pour vous accompagner dans votre parcours d'achat immobilier

Lyon 3 / appartement rez de jardin t3 en coeur d'îlot, garage, cave

— Lyon-3e 69003 —
320 000 €
70 m²
3 pièces
parkingbalcon/terrasse

Nos partenaires locaux
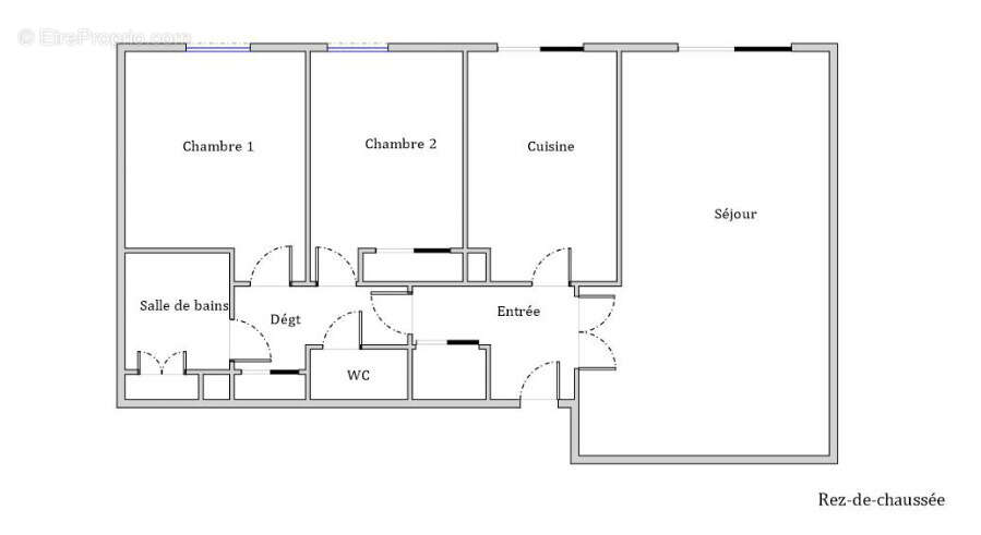
LYON 3 / '48 Rue RICHERAND': Les Jardins D'Orsay. Très bel appartement T3 en rez-de-jardin, idéalement situé dans un secteur résidentiel calme, à proximité immédiate de la gare de la Part Dieu disposant d'un garage box fermé en sous-sol + cave.

Niché dans une résidence de standing, sécurisée entourée d'espaces verts, cet appartement offre un cadre de vie agréable et familial sans la moindre nuisance.

Pièce de vie spacieuse, lumineuse et fonctionnelle ( plein sud) ouvrant sur une grande terrasse à vivre (privative en coeur d'îlot au calme ) . La cuisine pouvant s'ouvrir sur la pièce principale avec quelques travaux de convenance. L'espace nuit comprend 2 chambres confortables et intimistes ainsi qu'une salle d'eau + wc séparé. L'ensemble est en bon état d'usage et d'entretien.

Prix: 320.000 euros honoraires inclus à la charge du vendeur. Contact Julien DUVERT Bureau Sully o6-18-64-52-32. Bien soumis au régime de la copropriété, nb total de lots: 100, montant annuel de charges: 1140 euros, pas de procédure en cours.
Voir plus

Bien en copropriété. Nombre de lots : 100. Charges de copropriété : 1140 €.
Honoraires à la charge du vendeur.
Barème des honoraires
DPE
A
B
C
D
E
F
G
GES
A
B
C
D
E
F
G

Prêt immobilier

Vous souhaitez connaître votre capacité d’emprunt et trouver le meilleur crédit immobilier ?
Réaliser une simulation gratuite

Appartement à LYON-3E
Appartement à LYON-3E
Appartement à LYON-3E
Appartement à LYON-3E
Appartement à LYON-3E
Appartement à LYON-3E
Appartement à LYON-3E
Appartement à LYON-3E
Appartement à LYON-3E
Appartement à LYON-3E
Appartement à LYON-3E
Appartement à LYON-3E
Appartement à LYON-3E
Ce site est protégé par reCAPTCHA la Politique de confidentialité et les Conditions d’utilisation de Google s’appliquent.
Obtenir un prêt immobilier au meilleur taux ?

En poursuivant votre navigation sans modifier vos paramètres, vous acceptez l'utilisation de cookies susceptibles de réaliser des statistiques de visite. Cliquez ici pour plus d'informations