Dpt haute savoie (74), à vendre faverges appartement t3 ( 67 m2)2ème étage avec terrasse et vue

— Faverges 74210 —
234 000 €
68 m²
3 pièces
parkingbalcon/terrasseascenseur

Très bien situé dans un environnement très calme à seulement quelques minutes du centre ville.
Situé au pied des montagnes , vous profitez néanmoins d'un parking public gratuit devant la résidence.
Votre copropriété est récente sécurisée et votre appartement en parfait état.

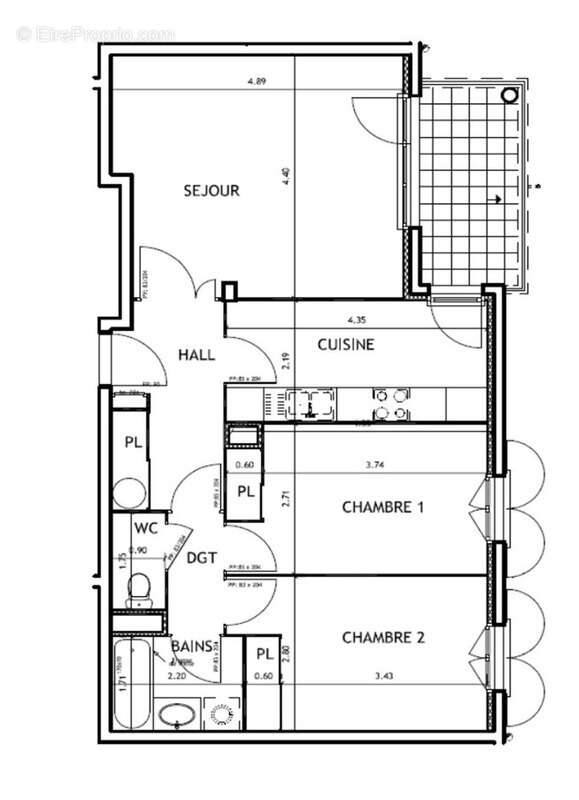
Au 2ème étage / 3.
Ce T3 comprend un espace de vie 5salle à manger + cuisine ) avec sa terrasse. La cuisine elle, est actuellement indépendante mais il est possible d'obtenir une cuisine ouverte en supprimant simplement une cloison.
Autre avantage , la cuisine dispose également d'un accès sur terrasse .

Pas de travaux à prévoir à l'exception de l'aménagement d'une cuisine .
Vous bénéficiez d'un garage en sous sol.

Ce bien s'adresse prioritairement à des futurs proprietaires qui recherchent un appartement sans travaux au calme avec un stationnement aisé. Il conviendra également à ceux qui qui souhaitent une résidence secondaire à proximité du Lac d'Annecy ( 10 minutes )

Points forts
Superbe terrasse
Possibilité d'une pièce de vie ouverte avec cuisine US
La pièce de vie dispose d'un volet roulant motorisé
Les communs sont en parfait état
Accès centre ville à pied en 3 minutes Nombre de lots de la copropriété : 46, Montant moyen annuel de la quote-part de charges (budget prévisionnel)(142) : 1700€ soit 141€ par mois. Les honoraires sont à la charge du vendeur.
Les informations sur les risques auxquels ce bien est exposé sont disponibles sur le site Géorisques : www. georisques. gouv. fr.

Réseau Immobilier CAPIFRANCE - Votre agent commercial (RSAC N°420 944 019 - Greffe de LABASTIDE VILLEFRANCHE) Fabrice BAILLY Entrepreneur Individuel à Responsabilité Limitée [Coordonnées masquées] - Réf.921445
Voir plus

Référence: 340937176754
Bien en copropriété. Nombre de lots : 46. Charges de copropriété : 141 €.
Honoraires à la charge du vendeur.
DPE
A
B
C
D
E
F
G
GES
A
B
C
D
E
F
G

Prêt immobilier

Vous souhaitez connaître votre capacité d’emprunt et trouver le meilleur crédit immobilier ?
Réaliser une simulation gratuite

Appartement à FAVERGES
Appartement à FAVERGES
Appartement à FAVERGES
Appartement à FAVERGES
Appartement à FAVERGES
Appartement à FAVERGES
Appartement à FAVERGES
Appartement à FAVERGES
Appartement à FAVERGES
Ce site est protégé par reCAPTCHA la Politique de confidentialité et les Conditions d’utilisation de Google s’appliquent.
Obtenir un prêt immobilier au meilleur taux ?

En poursuivant votre navigation sans modifier vos paramètres, vous acceptez l'utilisation de cookies susceptibles de réaliser des statistiques de visite. Cliquez ici pour plus d'informations