Bénéficiez des services de nos partenaires locaux soigneusement sélectionnés
pour vous accompagner dans votre parcours d'achat immobilier

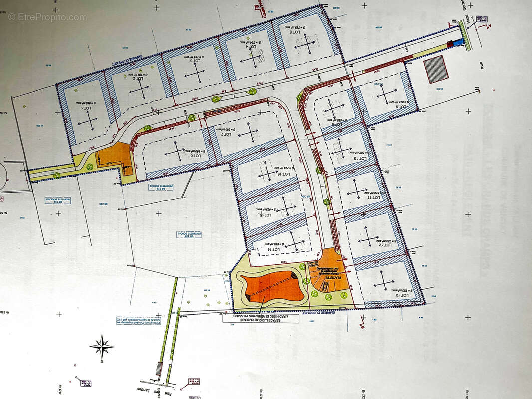
Terrain constructible, commune de Vendat 03 Allier

— Vendat 03110 —
63 000 €
532 m²
jardin

Nos partenaires locaux
MICRO IMMO VICHY vous propose à la vente des terrains à construire viabilisés, proche de Vichy sur la commune de Vendat :
Lot no 9: 645 m2 75 000€ FAI
Lot no10: 532 m2 63 000€ FAI
Lot no11: 579 m2 64 000€ FAI
Lot no12: 723 m2 78 000€ FAI
Lot no13: 753 m2 80 000€ FAI
Lot no14: 659 m2 75 000€ FAI
Lot no15: 663 m2 75 000€ FAI
Lot no16: 724 m2 78 000€ FAI

Les lots peuvent être couplés et bénéficieront d'une remise.

Dossier complet d'urbanisme, nous contacter
-

Les informations sur les risques auxquels ce bien est exposé sont disponibles sur le site Géorisques : www.georisques.gouv.fr
Contact : Aziz-Pierre SAID - [Coordonnées masquées] - [Coordonnées masquées]
-
Cette annonce a été rédigée sous la responsabilité éditoriale de Aziz-Pierre SAID, agent commercial indépendant, immatriculée au RSAC de Cusset no999 088 347, agissant pour le compte de la SARL MYCLERMONT.FR-MICRO.IMMO, au capital de 48 000 €, siège social 35 rue Fonod 63000 Clermont-Ferrand, SIRET 448 061 887, RCS Clermont-Ferrand, titulaire de la carte professionnelle Transactions sur immeubles et fonds de commerce noCPI 63[Coordonnées masquées]14879 délivrée par la CCI de Clermont-Ferrand. Garantie financière SOCAF 26 avenue de Suffren 75015 Paris Sans maniement de fonds.
- Annonce rédigée et publiée par un Agent Mandataire -
Voir plus

Honoraires à la charge du vendeur.
Barème des honoraires
Terrain à VENDAT
Terrain à VENDAT
Terrain à VENDAT
Géorisques

Les informations sur les risques auxquels ce bien est exposé sont disponibles sur le site Géorisques : www.georisques.gouv.fr

Ce site est protégé par hCaptcha Politique de confidentialité et Conditions d’utilisation s’appliquent.