Bénéficiez des services de nos partenaires locaux soigneusement sélectionnés
pour vous accompagner dans votre parcours d'achat immobilier

Revolution - appartement de charme t3 en dernier etage avec terrasse

— Nimes 30000 —
270 000 €
73 m²
3 pièces
balcon/terrasse

Nos partenaires locaux
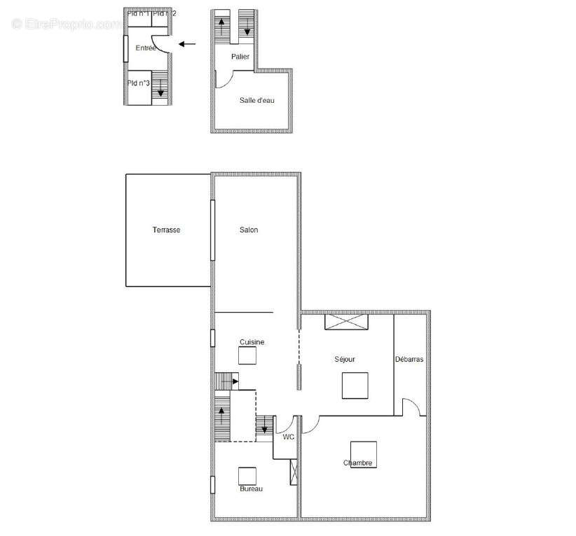
Tout près du square de la Bouquerie, au calme et en dernier étage, appartement T3 (1 chambre + bureau) avec terrasse intime sans vis-à-vis.
Subtile alchimie d'ancien et de moderne, ce confortable cocon dégage un charme intemporel. Spacieux et lumineux, il se compose d'une séjour avec grande baie vitrée donnant sur la terrasse, d'une cuisine américaine équipée, semi-ouverte sur la salle à manger, d'une grande chambre et d'une salle d'eau très contemporaine, d'un espace bureau, sans oublier l'entrée avec plusieurs placards. La décoration épurée, très actuelle, et l'excellent état vous permettront de poser vos valises immédiatement ! Une cave (8m2) est incluse.
Toutes les facilités (commerces de bouche, santé, loisirs, restaurants, transports...) sont accessibles à pied : l'idéal pour profiter de la ville... et pour se détendre au calme une fois chez soi.

J'aurai plaisir à vous présenter ce superbe 'home sweet home' ! Pour cela, n'hésitez pas à me contacter au 0 606 712 007.
A très bientôt !
Philippe Hallès - EI - RSAC Montpellier 503 691 263.
Copropriété : 15 lots principaux. Charges / an : 1 443.11€. Procédure : néant.
Cette annonce vous est proposée par Philippe HALLES - EI - NoRSAC: 503 691 263, Enregistré à Greffe du tribunal de commerce de AVIGNON COMPTOIR IMMOBILIER DE FRANCE - Plus d'informations sur cif-immo.com - « Les informations sur les risques auxquels ce bien est exposé sont disponibles sur le site Géorisques : www.georisques.gouv.fr » - Annonce rédigée et publiée par un Agent Mandataire -
Voir plus

Référence: 20528
Bien en copropriété. Nombre de lots : 14. Charges de copropriété : 1443 €.
Honoraires à la charge du vendeur.
Barème des honoraires
DPE
A
B
C
D
E
F
G
GES
A
B
C
D
E
F
G

Prêt immobilier

Vous souhaitez connaître votre capacité d’emprunt et trouver le meilleur crédit immobilier ?
Réaliser une simulation gratuite

Appartement à NIMES
Appartement à NIMES
Appartement à NIMES
Appartement à NIMES
Appartement à NIMES
Appartement à NIMES
Appartement à NIMES
Ce site est protégé par reCAPTCHA la Politique de confidentialité et les Conditions d’utilisation de Google s’appliquent.
Obtenir un prêt immobilier au meilleur taux ?

En poursuivant votre navigation sans modifier vos paramètres, vous acceptez l'utilisation de cookies susceptibles de réaliser des statistiques de visite. Cliquez ici pour plus d'informations