Bénéficiez des services de nos partenaires locaux soigneusement sélectionnés
pour vous accompagner dans votre parcours d'achat immobilier

Saint germain des prés / rue mazarine

— Paris-6e 75006 —
1 900 000 €
118 m²
3 pièces

Nos partenaires locaux
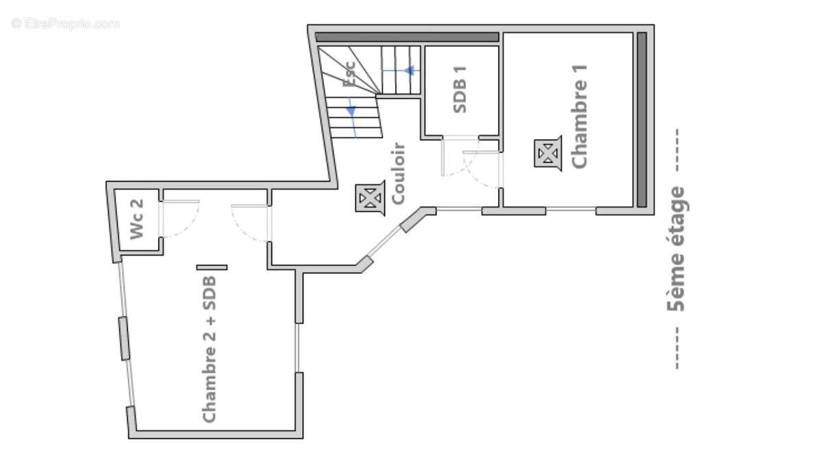
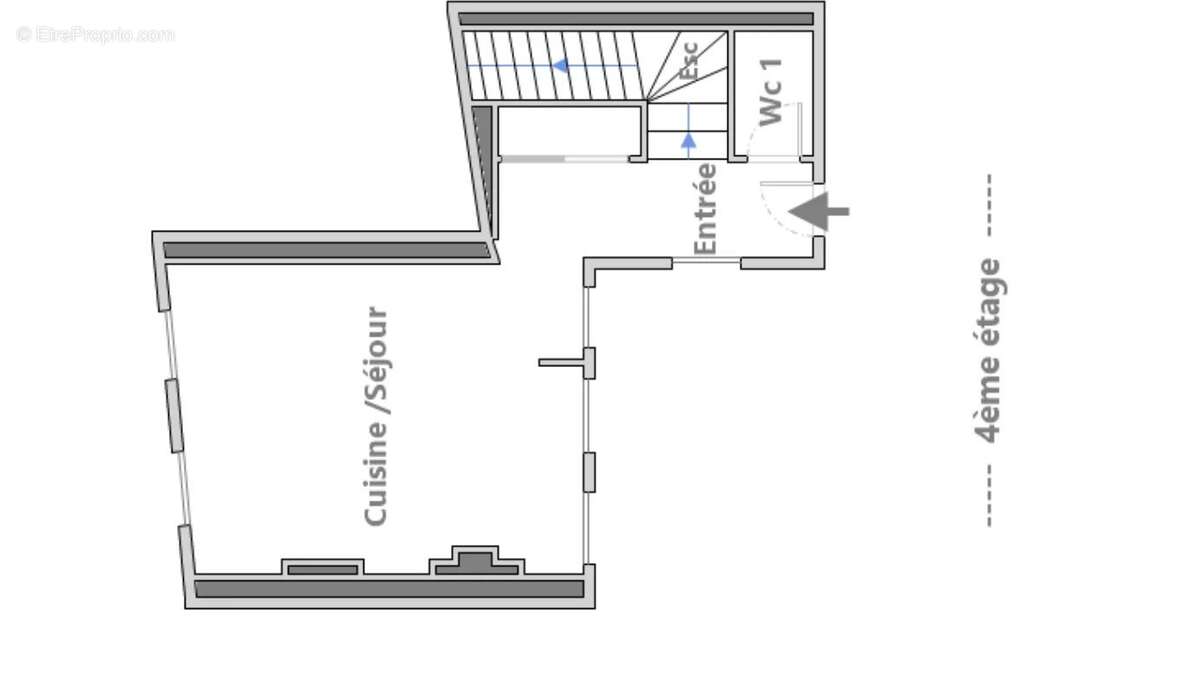
Au coeur du quartier mythique de Saint Germain des Prés, ravissant duplex au quatrième et dernier étage par escalier. Comme une maison dans le ciel, il se compose ainsi :

Au premier niveau :
- une entrée
- un grand séjour/salle à manger traversant Est/Ouest
- une cuisine ouverte
- des toilettes invités


Au second niveau :
- une master bedroom avec une salle de bain et toilettes séparées
- une deuxième chambre
- une salle de douche avec toilettes

Surface totale : 139,51m2
Surface carrez : 117,5m2
Surface pondérée : 128 m2

Poutres apparentes
Charme de l'ancien
Dernier étage
Climatisation
Quartier prisé et recherché

Les informations sur les risques auxquels ce bien est exposé sont disponibles sur le site Géorisques : www.georisques.gouv.fr
Voir plus

Référence: 86005466
Barème des honoraires
DPE
A
B
C
D
E
F
G
GES
A
B
C
D
E
F
G

Prêt immobilier

Vous souhaitez connaître votre capacité d’emprunt et trouver le meilleur crédit immobilier ?
Réaliser une simulation gratuite

Appartement à PARIS-6E
Appartement à PARIS-6E
Appartement à PARIS-6E
Appartement à PARIS-6E
Appartement à PARIS-6E
Appartement à PARIS-6E
Appartement à PARIS-6E
Appartement à PARIS-6E
Appartement à PARIS-6E
Appartement à PARIS-6E
Appartement à PARIS-6E
Appartement à PARIS-6E
Appartement à PARIS-6E
Appartement à PARIS-6E
Appartement à PARIS-6E
Appartement à PARIS-6E
Appartement à PARIS-6E
Appartement à PARIS-6E
Appartement à PARIS-6E
Appartement à PARIS-6E
Appartement à PARIS-6E
Appartement à PARIS-6E
Appartement à PARIS-6E
Appartement à PARIS-6E
Appartement à PARIS-6E
Appartement à PARIS-6E
Ce site est protégé par reCAPTCHA la Politique de confidentialité et les Conditions d’utilisation de Google s’appliquent.
Obtenir un prêt immobilier au meilleur taux ?

En poursuivant votre navigation sans modifier vos paramètres, vous acceptez l'utilisation de cookies susceptibles de réaliser des statistiques de visite. Cliquez ici pour plus d'informations