Bénéficiez des services de nos partenaires locaux soigneusement sélectionnés
pour vous accompagner dans votre parcours d'achat immobilier

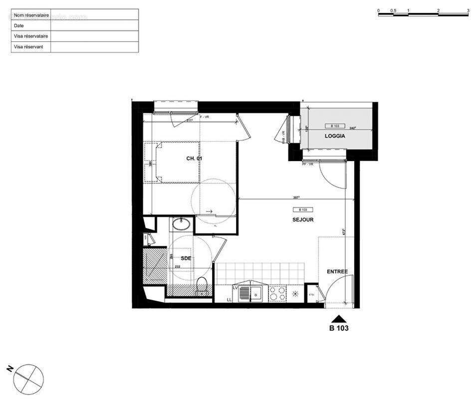
Vente t2 de 39 m², avec loggia, lannion (22300)

— Lannion 22300 —
196 000 €
39 m²
2 pièces
parkingascenseur

Nos partenaires locaux
Côtes d'Armor, Lannion centre, 22300, à proximité immédiate du centre historique, de la gare et des commerces, appartement T2 de 39 m² .

L'appartement se compose d'une pièce de vie avec espace cuisine ouverte, d'une chambre, d'une salle d'eau avec WC, + Parking

Prix : 196 000 euros HAI
Honoraires agence à la charge du vendeur.

Informations et visite [Coordonnées masquées]
[Coordonnées masquées]

Des prestations de standing pour un ensemble de qualité, d'un EXCELLENT NIVEAU DE CONFORT MODERNE ET D'ISOLATION ainsi que DE FAIBLES CHARGES DE COPROPRIÉTÉ.

Notice descriptive complète sur demande. Photos non contractuelles.
Remise des clés dans le dernier trimestre 2027 .

Selon l'article L.561.5 du Code Monétaire et Financier, pour l'organisation de la visite, la présentation d'une pièce d'identité vous sera demandée. Cette annonce a été rédigée sous la responsabilité éditoriale de Laurence KERMOAL agissant sous le statut d'agent commercial immatriculé au RSAC SAINT BRIEUC 822474235 auprès de SAS PROPRIETES PRIVEES, au capital de 44 920 euros, ZAC LE CHÊNE FERRÉ - 44 ALLÉE DES CINQ CONTINENTS 44120 VERTOU ; SIRET 487 624 777 00040, RCS Nantes. Carte Professionnelle Transactions sur immeubles et fonds de commerce (T) et Gestion immobilière (G) n°CPI 44[Coordonnées masquées]10 388 délivrée par la CCI Nantes - Saint Nazaire. Compte séquestre n°3[Coordonnées masquées] BPA SAINT-SEBASTIEN-SUR-LOIRE (44230). Garantie GALIAN-SMABTP - 89 rue de la Boétie, 75008 Paris - n°28137 J pour 2 000 000 euros pour T et 120 000 euros pour G. Assurance responsabilité civile professionnelle par GALIAN-SMABTP n° de police 28137.J
Mandat réf : 421818 - T2 B103
Le professionnel garantit et sécurise votre projet immobilier.

Laurence KERMOAL (EI) Agent Commercial - Numéro RSAC : SAINT BRIEUC 822474235 - .
Voir plus

Référence: 421818LKE

Prêt immobilier

Vous souhaitez connaître votre capacité d’emprunt et trouver le meilleur crédit immobilier ?
Réaliser une simulation gratuite

Appartement à LANNION
Appartement à LANNION
Appartement à LANNION
Ce site est protégé par reCAPTCHA la Politique de confidentialité et les Conditions d’utilisation de Google s’appliquent.
Obtenir un prêt immobilier au meilleur taux ?

En poursuivant votre navigation sans modifier vos paramètres, vous acceptez l'utilisation de cookies susceptibles de réaliser des statistiques de visite. Cliquez ici pour plus d'informations