Bénéficiez des services de nos partenaires locaux soigneusement sélectionnés
pour vous accompagner dans votre parcours d'achat immobilier

Spacieuse maison 4P en fond d’impasse – Idéale famille, Quartier Trigance

— Istres 13800 —
302 000 €
93 m² / 121 m²
4 pièces
balcon/terrassejardin

Nos partenaires locaux
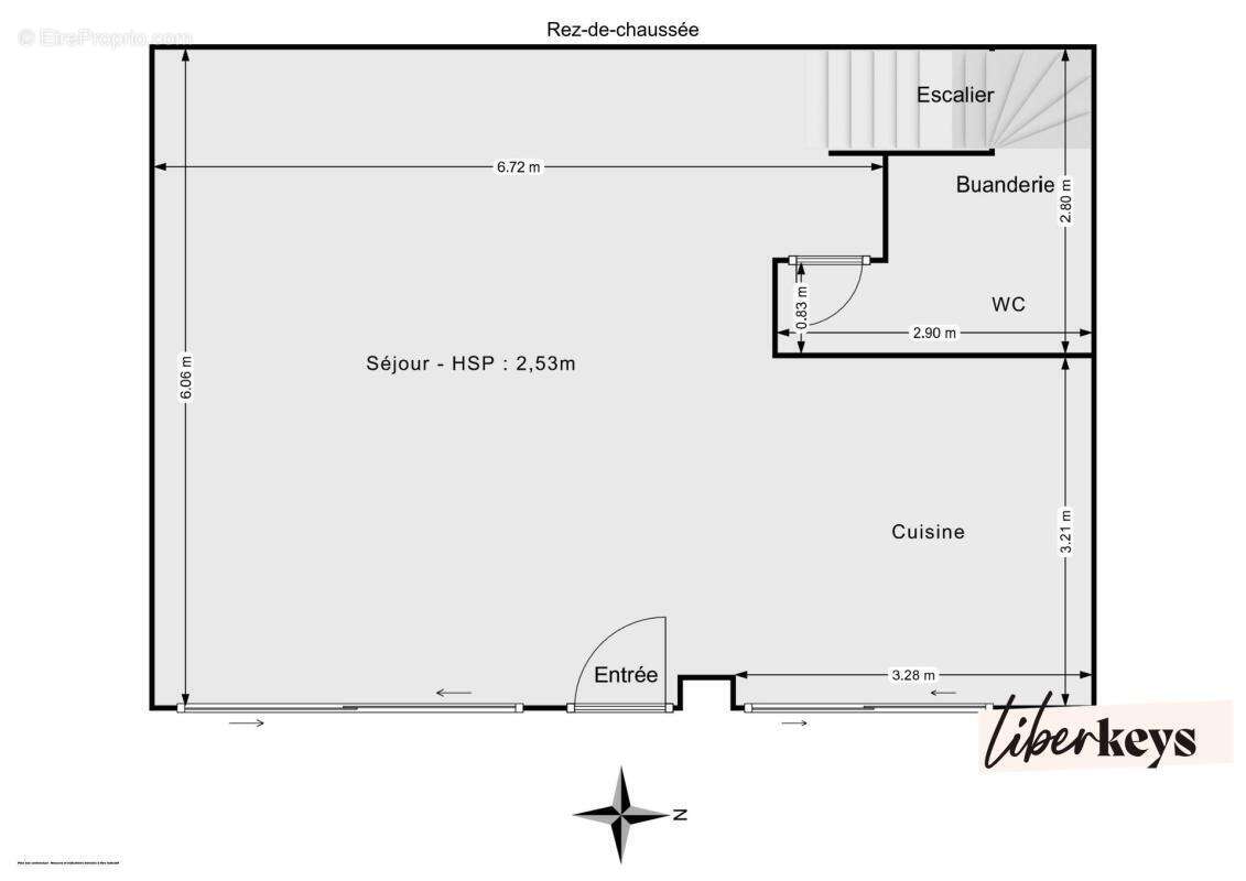
Maison spacieuse et lumineuse, parfaitement agencée pour une vie de famille confortable. Située dans le quartier résidentiel très recherché de Trigance, en fond d'impasse, cette maison mitoyenne d'un côté bénéficie d'un environnement calme et privilégié. Elle dispose d'un agréable jardin avec terrasse couverte, idéal pour profiter des extérieurs en toute saison.

Agencements et Prestations :
- Toutes les pièces orientées SUD,
- Séjour convivial ouvert sur cuisine fonctionnelle,
- Trois chambres climatisées avec placards,
- Salle d'eau avec douche italienne + WC séparés,
- Espace buanderie/WC modulable, possibilité de séparer les toilettes et créer une buanderie indépendante.
- Placard supplémentaire dans le couloir pour un rangement optimisé.
- Climatisation réversible (RDC + étage)

Environnement & qualité de vie :
- À proximité des écoles, commerces et services.
- Centre-ville d'Istres accessible en moins de 10 minutes.
- Accès rapide à Fos-sur-Mer, Martigues, Miramas et gare SNCF à moins de 2 km.

Informations pratiques :
- DPE A / Diagnostic réalisé le 13/05/25
- Taxe foncière : 1 792 € / an.
Certaines photos ont été légèrement retouchées pour mise en valeur ; aucune modification réelle.

Ce bien vous plaît ? Visitez-le sur le site de Liberkeys ou contactez directement votre conseillère, Moula Farzana, agent commercial immatriculé au RSAC de Salon-de-Provence sous le numéro 790 648 562. Référence annonce : DOM20975. Date de réalisation du diagnostic : 14/05/2025. Les honoraires sont à la charge du vendeur.
Voir plus

Référence: DOM20975
Honoraires à la charge du vendeur.
DPE
A
B
C
D
E
F
G
GES
A
B
C
D
E
F
G
Maison à ISTRES
Maison à ISTRES
Maison à ISTRES
Maison à ISTRES
Maison à ISTRES
Maison à ISTRES
Maison à ISTRES
Maison à ISTRES
Maison à ISTRES
Maison à ISTRES
Géorisques

Les informations sur les risques auxquels ce bien est exposé sont disponibles sur le site Géorisques : www.georisques.gouv.fr

Ce site est protégé par hCaptcha Politique de confidentialité et Conditions d’utilisation s’appliquent.

En poursuivant votre navigation sans modifier vos paramètres, vous acceptez l'utilisation de cookies susceptibles de réaliser des statistiques de visite. Cliquez ici pour plus d'informations