Bénéficiez des services de nos partenaires locaux soigneusement sélectionnés
pour vous accompagner dans votre parcours d'achat immobilier

Maison à vendre 6 pièces COMBRIT (29)

— Combrit 29120 —
449 000 €
140 m² / 730 m²
6 pièces
parkingbalcon/terrassejardin

Nos partenaires locaux
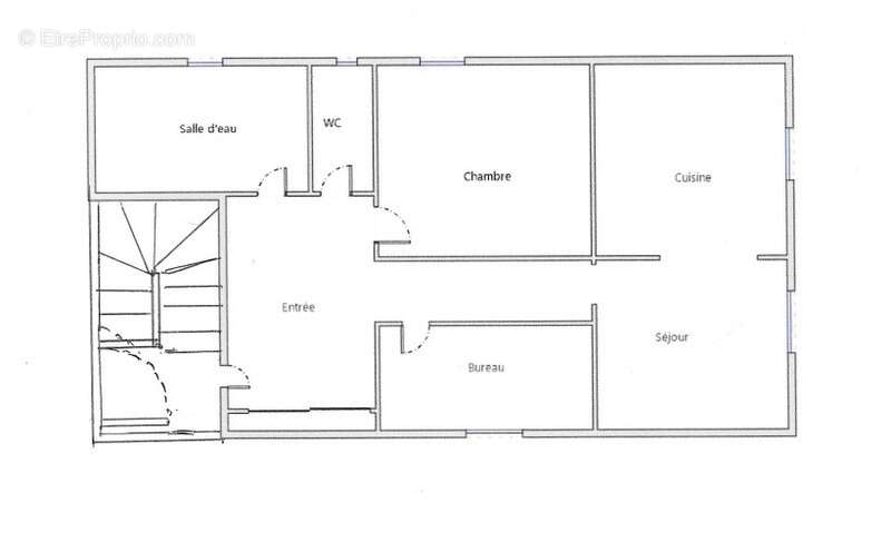
Maison au calme, en fond d'impasse, les commodités à pied.
Au rez-de-chaussée: deux chambres avec placard, un séjour avec poêle à bois, donnant sur une grande terrasse carrelée et une pergola climatique avec rideau électrique, une cuisine aménagée et équipée, attenante au séjour, un WC, une salle de bains.
A l'étage: 2 chambres avec placards, une salle d'eau, un WC indépendant, un coin séjour donnant sur une autre cuisine aménagée et équipée. Ce coin séjour et cuisine pourrait aisément devenir une chambre supplémentaire avec sa salle d'eau privative et vous auriez ainsi une maison de 5 chambres.
Cette maison fonctionne aussi bien en maison individuelle qu'en immeuble composé de deux appartements.
Maison année 2011. Double vitrage, volets électriques à télécommande, poêle à bois très récent. Chauffage électrique. Assainissement collectif.
Garage double de 36 m², avec une mezzanine au dessus, bien pratique pour ranger tous vos équipements.
Jardin entièrement clos de grillages, murs et portail. Possibilité d'hiverner un bateau ou un camping-car.
Taxe foncière 2025: 1171 €
Cette maison méticuleusement entretenue est située en fond d'impasse, au grand calme, non loin des bois qui longent l'Odet, cette magnifique rivière maritime le long de laquelle les sentiers vous invitent à pratiquer marche, jogging, VTT, ou encore la cueillette de champignons et de châtaignes. La mairie, la poste, les écoles et les commerces sont accessibles à pied. Les plages sont à 3 kilomètres. Les ports de Sainte-Marine et de l'Ile Tudy sont également à 3 kilomètres.
Les honoraires d'agence sont à la charge de l'acquéreur, soit 3,22% TTC du prix hors honoraires.
Les informations sur les risques auxquels ce bien est exposé sont disponibles sur le site Géorisques : www. georisques. gouv. fr.

Réseau Immobilier CAPIFRANCE - Votre agent commercial (RSAC N°478 362 593 - Greffe de QUIMPER) Karine CORCUFF Entrepreneur Individuel [Coordonnées masquées] - Réf.922861
Voir plus

Référence: 340933761802
DPE
A
B
C
D
E
F
G
GES
A
B
C
D
E
F
G
Maison à COMBRIT
Maison à COMBRIT
Maison à COMBRIT
Maison à COMBRIT
Maison à COMBRIT
Maison à COMBRIT
Maison à COMBRIT
Maison à COMBRIT
Maison à COMBRIT
Maison à COMBRIT
Maison à COMBRIT
Maison à COMBRIT
Maison à COMBRIT
Maison à COMBRIT
Maison à COMBRIT
Maison à COMBRIT
Maison à COMBRIT
Maison à COMBRIT
Maison à COMBRIT
Maison à COMBRIT
Maison à COMBRIT
Maison à COMBRIT
Maison à COMBRIT
Maison à COMBRIT
Maison à COMBRIT
Maison à COMBRIT
Maison à COMBRIT
Maison à COMBRIT
Géorisques

Les informations sur les risques auxquels ce bien est exposé sont disponibles sur le site Géorisques : www.georisques.gouv.fr

Ce site est protégé par hCaptcha Politique de confidentialité et Conditions d’utilisation s’appliquent.

En poursuivant votre navigation sans modifier vos paramètres, vous acceptez l'utilisation de cookies susceptibles de réaliser des statistiques de visite. Cliquez ici pour plus d'informations