Bénéficiez des services de nos partenaires locaux soigneusement sélectionnés
pour vous accompagner dans votre parcours d'achat immobilier

Exclu coeur de divonne - t4 traversant avec terrasse + garage double, vue mont blanc

— Divonne-Les-Bains 01220 —
698 000 €
104 m²
4 pièces
parkingbalcon/terrasse

Nos partenaires locaux
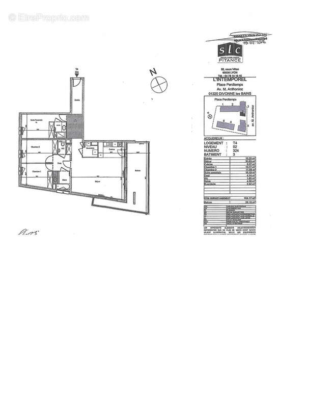
EXCLUSIVITE AGENCE MATESA IMMO ! CENTRE DIVONNE LES BAINS, dans résidence recherchée et appréciée, nous sommes ravis de vous présenter ce magnifique appartement 4 pièces traversant (T4 3 CHAMBRES) face aux Alpes et Mont-Blanc situé au 2ième étage avec une spacieuse et agréable terrasse exposée plein sud.
L’appartement est disposé comme suit : Une grande entrée avec un placard aménagé, une buanderie-chaufferie gaz individuel, une lumineuse pièce de vie avec une très belle cuisine italienne ouverte sur la salle à manger, salon-séjour le tout donnant accès à la terrasse, un dégagement desservant un wc suspendu carrelé avec un lave-main, deux chambres avec placards, une salle de bain avec fenêtre, une autre suite parentale avec placard et sa propre salle de douche privative avec un wc.
En annexe au sous-sol : un grand garage double (côte à côté) avec porte électrique.
Très belles prestations : immeuble basse consommation classe énergétique C, fenêtres bois-alu, stores BSO, parquet bois véritable, ETC…
Toutes les commodités sont au pied de la résidence. Idéalement situé !
Aucun travaux à prévoir, appartement en parfait état ! A VISITER RAPIDEMENT RARE A LA VENTE !
Les informations sur les risques auxquels ce bien est exposé sont disponibles sur le site Géorisques http://www.georisques.gouv.fr
Matesa immobilier, agence immobilière Divonne les Bains, vente et achat appartement Divonne les Bains 01220
Voir plus

Bien en copropriété. Charges de copropriété : 2880 €.
Honoraires à la charge du vendeur.
Barème des honoraires
DPE
A
B
C
D
E
F
G
GES
A
B
C
D
E
F
G

Prêt immobilier

Vous souhaitez connaître votre capacité d’emprunt et trouver le meilleur crédit immobilier ?
Réaliser une simulation gratuite

Appartement à DIVONNE-LES-BAINS
Appartement à DIVONNE-LES-BAINS
Appartement à DIVONNE-LES-BAINS
Appartement à DIVONNE-LES-BAINS
Appartement à DIVONNE-LES-BAINS
Appartement à DIVONNE-LES-BAINS
Appartement à DIVONNE-LES-BAINS
Appartement à DIVONNE-LES-BAINS
Appartement à DIVONNE-LES-BAINS
Appartement à DIVONNE-LES-BAINS
Appartement à DIVONNE-LES-BAINS
Appartement à DIVONNE-LES-BAINS
Appartement à DIVONNE-LES-BAINS
Appartement à DIVONNE-LES-BAINS
Appartement à DIVONNE-LES-BAINS
Appartement à DIVONNE-LES-BAINS
Appartement à DIVONNE-LES-BAINS
Appartement à DIVONNE-LES-BAINS
Appartement à DIVONNE-LES-BAINS
Appartement à DIVONNE-LES-BAINS
Appartement à DIVONNE-LES-BAINS
Appartement à DIVONNE-LES-BAINS
Appartement à DIVONNE-LES-BAINS
Ce site est protégé par reCAPTCHA la Politique de confidentialité et les Conditions d’utilisation de Google s’appliquent.
Obtenir un prêt immobilier au meilleur taux ?

En poursuivant votre navigation sans modifier vos paramètres, vous acceptez l'utilisation de cookies susceptibles de réaliser des statistiques de visite. Cliquez ici pour plus d'informations