Bénéficiez des services de nos partenaires locaux soigneusement sélectionnés
pour vous accompagner dans votre parcours d'achat immobilier

Maison à saint-cloud

— Saint-Cloud 92210 —
1 575 000 €
6 pièces

Nos partenaires locaux
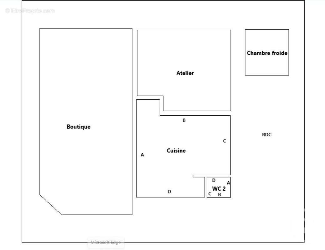
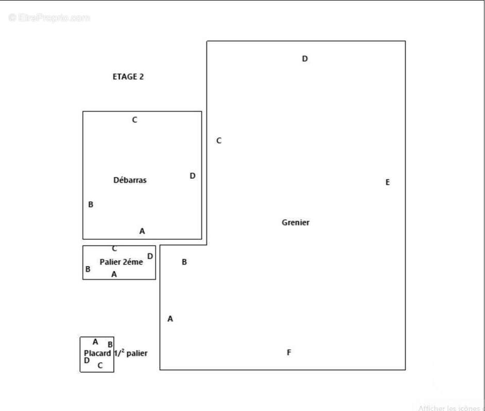
Saint-Cloud, quartier « Les Coteaux » proche du Tram, commerces, restaurants, dans un quartier en pleine transformation, venez découvrir cette maison élevée sur une parcelle de 417 m2 comprenant un commerce en rez-de-chaussée, magasin + atelier de préparation + arrière-boutique, chambre, cuisine, cave, wc extérieur, cabanon.A premier étage, deux chambres avec cheminées salle de bains, wc. Salle d'eau.Possibilité de déposer un permis de construire en phase avec le PLU.Chaudière gaz ;Chambres sous Combles Grenier à aménager ;7 box et 2 places de parking ;Sous-Sol - Cave,Rez de chaussée - Parking 1 à 7,Rez de chaussée - Cuisine,Rez de chaussée - WC 1,Rez de chaussée - Atelier,Rez de chaussée - Boutique,Rez de chaussée - Chambre froide,1er étage - Palier 1er,1er étage - Dégagement,1er étage - Salle d'eau,1er étage - WC 2,1er étage - Séjour,1er étage - Chambre 1,1er étage - Chambre 2,1er étage / 2éme étage - Placard,2ème étage - Débarras,2ème étage - Palier 2éme,2ème étage - Grenier
Voir plus

Référence: 14655
Honoraires à la charge du vendeur.
Barème des honoraires
DPE
A
B
C
D
E
F
G
GES
A
B
C
D
E
F
G

Prêt immobilier

Vous souhaitez connaître votre capacité d’emprunt et trouver le meilleur crédit immobilier ?
Réaliser une simulation gratuite

Maison à SAINT-CLOUD
Maison à SAINT-CLOUD
Maison à SAINT-CLOUD
Maison à SAINT-CLOUD
Maison à SAINT-CLOUD
Maison à SAINT-CLOUD
Maison à SAINT-CLOUD
Maison à SAINT-CLOUD
Maison à SAINT-CLOUD
Maison à SAINT-CLOUD
Maison à SAINT-CLOUD
Maison à SAINT-CLOUD
Maison à SAINT-CLOUD
Maison à SAINT-CLOUD
Maison à SAINT-CLOUD
Maison à SAINT-CLOUD
Maison à SAINT-CLOUD
Maison à SAINT-CLOUD
Maison à SAINT-CLOUD
Maison à SAINT-CLOUD
Maison à SAINT-CLOUD
Ce site est protégé par reCAPTCHA la Politique de confidentialité et les Conditions d’utilisation de Google s’appliquent.
Obtenir un prêt immobilier au meilleur taux ?

En poursuivant votre navigation sans modifier vos paramètres, vous acceptez l'utilisation de cookies susceptibles de réaliser des statistiques de visite. Cliquez ici pour plus d'informations