Bénéficiez des services de nos partenaires locaux soigneusement sélectionnés
pour vous accompagner dans votre parcours d'achat immobilier

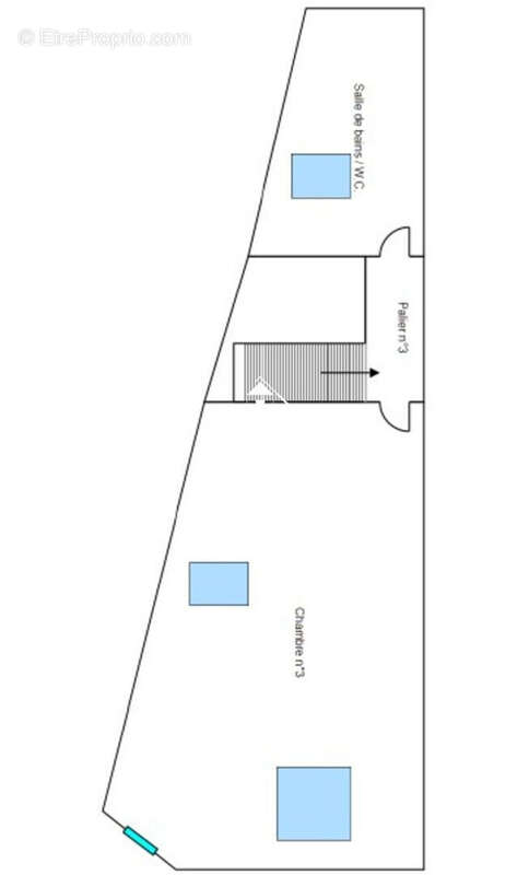
Appartement 141m² à limoges

— Limoges 87000 —
196 000 €
141 m²

Nos partenaires locaux
LIMOGES CENTRE en angle de rue Immeuble de rapport à rénover 6 pièces avec bureaux en RDC. RDC - 2 bureaux Etg1 - 1 T 2 avec dépendance Etg 2 - 1 T 2 avec dépendance Etg 3 - 1 T 2 avec dépendance Très bien situé proche commodités. - cave et grenier. Couverture récente taxe foncière: 1691 € Les informations sur les risques auxquels ce bien est exposé sont disponibles sur le site :www.georisques.fr~« Montant estimé des dépenses annuelles d'énergie pour un usage standard : Entre 3165 euros et 4283 euros par an Prix moyens des énergies indexés au 08/10/2021 (abonnement compris) Prix de vente : 196 000 FAI Honoraires charge acquéreur : 11 000 € Prix hors honoraires : 185 000 € Mandat N° 1403 contact :[Coordonnées masquées] tél: [Coordonnées masquées]

Honoraires inclus de 5.95% TTC à la charge de l'acquéreur. Prix hors honoraires 185 000 €. Classe énergie E, Classe climat E. Les informations sur les risques auxquels ce bien est exposé sont disponibles sur le site Géorisques : georisques.gouv.fr.
Voir plus

Référence: 579-IMMOJURISTE
Honoraires d'agence de 5.95% à la charge de l'acquéreur
Barème des honoraires
DPE
A
B
C
D
E
F
G
GES
A
B
C
D
E
F
G

Prêt immobilier

Vous souhaitez connaître votre capacité d’emprunt et trouver le meilleur crédit immobilier ?
Réaliser une simulation gratuite

Appartement à LIMOGES
Appartement à LIMOGES
Appartement à LIMOGES
Appartement à LIMOGES
Appartement à LIMOGES
Appartement à LIMOGES
Appartement à LIMOGES
Appartement à LIMOGES
Ce site est protégé par reCAPTCHA la Politique de confidentialité et les Conditions d’utilisation de Google s’appliquent.
Obtenir un prêt immobilier au meilleur taux ?

En poursuivant votre navigation sans modifier vos paramètres, vous acceptez l'utilisation de cookies susceptibles de réaliser des statistiques de visite. Cliquez ici pour plus d'informations