Bénéficiez des services de nos partenaires locaux soigneusement sélectionnés
pour vous accompagner dans votre parcours d'achat immobilier

Appartement 1000 m² à Varennes-Sur-Seine

— Varennes-Sur-Seine 77130 —
850 000 €
1 000 m²

Nos partenaires locaux
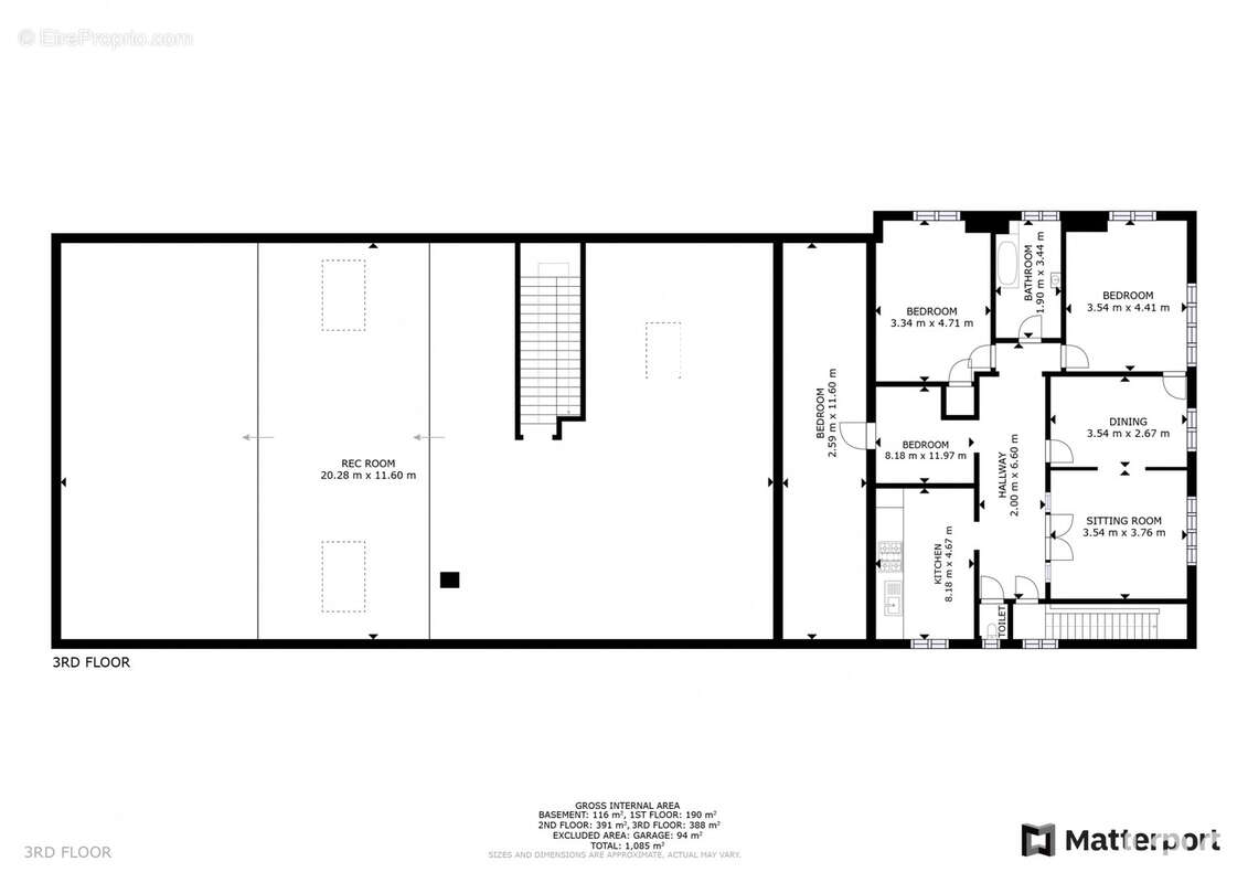
Iad France - Frédéric Jarry vous propose : Sur une parcelle de 1347 m² ensemble immobilier comprenant :
- Un bâtiment principal sur 2 étages composé de :
o 5 appartements de 400 m² au total (1 appartement 83 m² 4 pièces, 1 appartement
78 m² 4 pièces, 1 appartement 103 m² 4 pièces, 1 appartement 85 m² 3 pièces,
1 appartement 50 m² 3 pièces)
o surfaces brutes de plus de 450 m² à exploiter (possibilité d'aménager des logements)
o Un garage de 91 m² en rez de jardin.
- Un bâtiment annexe de 117 m² à l'état brut (possibilité d'aménagement)
- Places de stationnement et local technique.

Honoraires d'agence à la charge du vendeur.
Information d'affichage énergétique sur ce bien : classe ENERGIE D indice 144 et classe CLIMAT D indice 30. Les informations sur les risques auxquels ce bien est exposé, y compris l'obligation légale de débroussaillement, sont disponibles sur le site Géorisques : http://www.georisques.gouv.fr.
La présente annonce immobilière a été rédigée sous la responsabilité éditoriale de M Frédéric Jarry mandataire indépendant en immobilier (sans détention de fonds), agent commercial de la SAS I@D France immatriculé au RSAC de MELUN sous le numéro 751 854 746, titulaire de la carte de démarchage immobilier pour le compte de la société I@D France SAS.Informations LOI ALUR : Honoraires charge vendeur. (gedeon_6727_31915883)
Voir plus

Référence: 1850550
Honoraires à la charge du vendeur.
Barème des honoraires
DPE
A
B
C
D
E
F
G
GES
A
B
C
D
E
F
G
Photo 1 - Appartement à VARENNES-SUR-SEINE
Photo 1
Photo 2 - Appartement à VARENNES-SUR-SEINE
Photo 2
Photo 3 - Appartement à VARENNES-SUR-SEINE
Photo 3
Photo 4 - Appartement à VARENNES-SUR-SEINE
Photo 4
Photo 5 - Appartement à VARENNES-SUR-SEINE
Photo 5
Photo 6 - Appartement à VARENNES-SUR-SEINE
Photo 6
Photo 7 - Appartement à VARENNES-SUR-SEINE
Photo 7
Photo 8 - Appartement à VARENNES-SUR-SEINE
Photo 8
Photo 9 - Appartement à VARENNES-SUR-SEINE
Photo 9
Géorisques

Les informations sur les risques auxquels ce bien est exposé sont disponibles sur le site Géorisques : www.georisques.gouv.fr

Ce site est protégé par hCaptcha Politique de confidentialité et Conditions d’utilisation s’appliquent.