Maison 6 pieces - 1019 m2 de terrain

— Villemoisson-Sur-Orge 91360 —
490 000 €
137 m² / 1 019 m²
6 pièces
parkingbalcon/terrassejardin

EXCLUSIVITE - VILLEMOISSON SUR ORGE - 91360
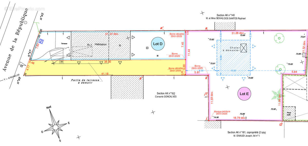
Maison 6 pièces édifiée sur un terrain de 1019 m2 (lot D et E) dont une parcelle constructible en lot arrière de 574 m2 (lot E). Voir plan en photo.
Située dans un secteur très recherché, calme et verdoyan, proche de toutes les commodités (à pieds : commerces, mairie, écoles, collège, théatre, médiathèque, dojo, gare de Sainte geneviève des Bois, etc).
Cette maison offre : au rez-de-chaussée : un double séjour avec cuisine ouverte donnant sur la terrasse.
A l’étage : un palier donne accès à 3 chambres et une salle de bain avec WC;
Un palier donne accès à une deuxième partie à l’arrière de la maison pouvant être indépendante ou non, comprenant : une salon/séjour donnant sur terrasse et jardin, une chambre avec placard, une cuisine séparée (pouvant faire office de 5ème chambre) ainsi qu’une salle de bain et un WC.
Un sous-sol d’environ 30m2 vient compléter ce bien.
Laissez-vous séduire par le potentiel de cette maison !
L'Agence Beurdeley reste à votre disposition pour tout complément d'information.
' Les informations sur les risques auxquels ce bien est exposé sont disponibles sur le site Géorisques : 'www.georisques.gouv.fr'
Voir plus

Barème des honoraires
DPE
A
B
C
D
E
F
G
GES
A
B
C
D
E
F
G

Prêt immobilier

Vous souhaitez connaître votre capacité d’emprunt et trouver le meilleur crédit immobilier ?
Réaliser une simulation gratuite

Maison à VILLEMOISSON-SUR-ORGE
Maison à VILLEMOISSON-SUR-ORGE
Maison à VILLEMOISSON-SUR-ORGE
Maison à VILLEMOISSON-SUR-ORGE
Maison à VILLEMOISSON-SUR-ORGE
Maison à VILLEMOISSON-SUR-ORGE
Maison à VILLEMOISSON-SUR-ORGE
Maison à VILLEMOISSON-SUR-ORGE
Maison à VILLEMOISSON-SUR-ORGE
Maison à VILLEMOISSON-SUR-ORGE
Maison à VILLEMOISSON-SUR-ORGE
Maison à VILLEMOISSON-SUR-ORGE
Maison à VILLEMOISSON-SUR-ORGE
Maison à VILLEMOISSON-SUR-ORGE
Maison à VILLEMOISSON-SUR-ORGE
Ce site est protégé par reCAPTCHA la Politique de confidentialité et les Conditions d’utilisation de Google s’appliquent.
Obtenir un prêt immobilier au meilleur taux ?

En poursuivant votre navigation sans modifier vos paramètres, vous acceptez l'utilisation de cookies susceptibles de réaliser des statistiques de visite. Cliquez ici pour plus d'informations