Bénéficiez des services de nos partenaires locaux soigneusement sélectionnés
pour vous accompagner dans votre parcours d'achat immobilier

Appartement f10

— Coutras 33230 —
149 700 €
217 m²
10 pièces

Nos partenaires locaux
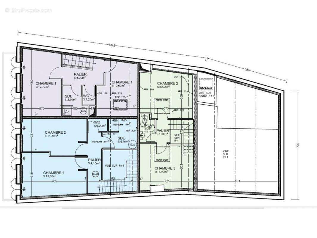
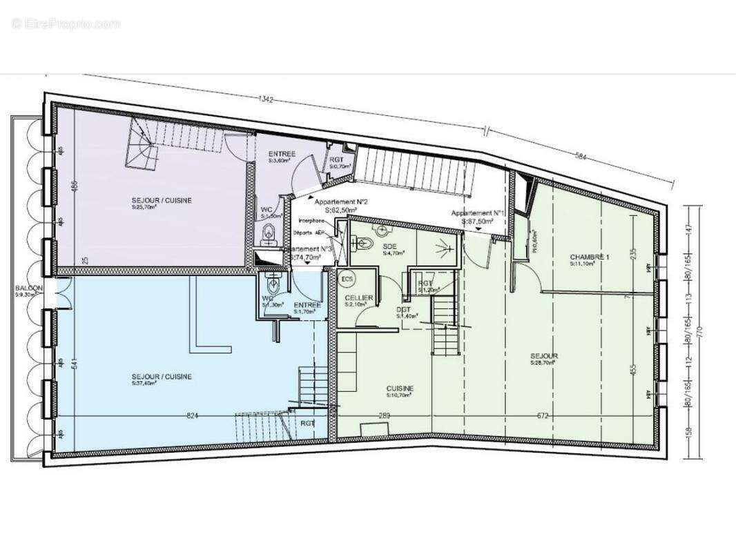
Produit spécial investisseurs pour ces 3 lots (appartements en duplex à réhabiliter) en plein centre ville de Coutras, au sein d'une copropriété libre de seulement 4 lots avec 2 propriétaires. La vente concerne le Lot 1 d'une surface de 87 m², le Lot 2 de 74 m² et le Lot 3 de 62 m². Emplacement idéale à proximité immédiate des commerces, écoles, gare SNCF et à seulement quelques kilomètres de l'A89. Des vues attractives avec d'une part le côté place centrale mairie, marché couvert, Eglise et d'autre part la rivière Dronne, apportant cachet et valeur ajoutée. Maquette interactive disponible sur demande, Informations et visite 7/7j. Si ce bien est fait pour vous, Prenez vite rendez-vous! Ce bien fait partie d'une copropriété ne faisant pas l'objet d'une procédure. Cette copropriété comprend 4 lots au total et sa quote part de charges annuelles s'élève à 0 euros.Le prix indiqué comprend les honoraires de négociation qui se montent à 6.9% TTC du prix affiché, ces honoraires sont à la charge exclusive de l'acquéreur. DPE non concerné. Guillaume BERTRAND, Agent Commercial immatriculé au RSAC de PERIGUEUX sous le numéro 75397841000029 - A la lucarne de l'immobilier - Ref. 84555
Voir plus

Référence: 84555
Bien en copropriété. Nombre de lots : 4.
Honoraires d'agence de 6.9% à la charge de l'acquéreur

Prêt immobilier

Vous souhaitez connaître votre capacité d’emprunt et trouver le meilleur crédit immobilier ?
Réaliser une simulation gratuite

Appartement à COUTRAS
Appartement à COUTRAS
Appartement à COUTRAS
Appartement à COUTRAS
Appartement à COUTRAS
Appartement à COUTRAS
Appartement à COUTRAS
Appartement à COUTRAS
Appartement à COUTRAS
Appartement à COUTRAS
Appartement à COUTRAS
Appartement à COUTRAS
Appartement à COUTRAS
Appartement à COUTRAS
Appartement à COUTRAS
Appartement à COUTRAS
Appartement à COUTRAS
Appartement à COUTRAS
Appartement à COUTRAS
Appartement à COUTRAS
Ce site est protégé par reCAPTCHA la Politique de confidentialité et les Conditions d’utilisation de Google s’appliquent.
Obtenir un prêt immobilier au meilleur taux ?

En poursuivant votre navigation sans modifier vos paramètres, vous acceptez l'utilisation de cookies susceptibles de réaliser des statistiques de visite. Cliquez ici pour plus d'informations