Bénéficiez des services de nos partenaires locaux soigneusement sélectionnés
pour vous accompagner dans votre parcours d'achat immobilier

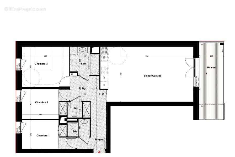
Appartement t4 avec balcon

— Ferney-Voltaire 01210 —
534 000 €
87 m²
4 pièces
balcon/terrasse

Nos partenaires locaux
Découvrez ce superbe appartement T4 de 86,71m2 , au 2eme étage d’une charmante résidence.

Ce bien comporte :
-Un grand séjour/cuisine ouvert de 33,86 m2 ouvrant sur un balcon de 10 m2 parfait pour vos moments de détente.

Trois chambres de 12 ,96m2 , 10,37m2 et 9,29m2.

Une salle de bain de 5,42m2 et une salle d’eau de 2,43m2.

Un Wc séparé.

Emplacement privilégié , à seulement 5 minute en voiture des commerces , 10 min pour les écoles et 5 minute de la gare routière .

- Surface habitable :86,71m2
- Surface totale avec annexes 69,69m2
- Prix :534 000€.
Voir plus

Référence: 86333733

Prêt immobilier

Vous souhaitez connaître votre capacité d’emprunt et trouver le meilleur crédit immobilier ?
Réaliser une simulation gratuite

Appartement à FERNEY-VOLTAIRE
Appartement à FERNEY-VOLTAIRE
Appartement à FERNEY-VOLTAIRE
Appartement à FERNEY-VOLTAIRE
Appartement à FERNEY-VOLTAIRE
Ce site est protégé par reCAPTCHA la Politique de confidentialité et les Conditions d’utilisation de Google s’appliquent.
Obtenir un prêt immobilier au meilleur taux ?

En poursuivant votre navigation sans modifier vos paramètres, vous acceptez l'utilisation de cookies susceptibles de réaliser des statistiques de visite. Cliquez ici pour plus d'informations