Bénéficiez des services de nos partenaires locaux soigneusement sélectionnés
pour vous accompagner dans votre parcours d'achat immobilier

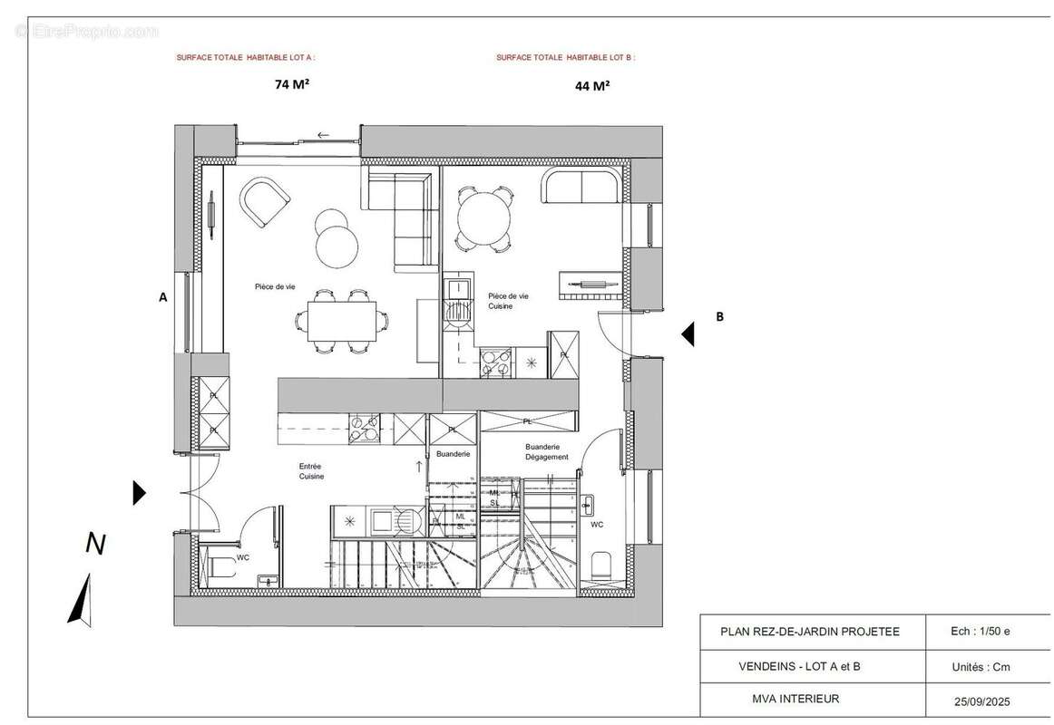
Appartement 74m² à vandeins

— Vandeins 01660 —
119 000 €
74 m²
3 pièces
parking

Nos partenaires locaux
Plateau à rénover avec terrain
Situé entre Vonnas (01540) et Bourg en Bresse (01000), TERACYTE vous propose de devenir propriétaire d'un plateau, en duplex, à réhabiliter offrant la possibilité d'effectuer les aménagements et la personnalisation de l'espace intérieur comme vous le souhaitez avec une surface au sol de 80m².
Situé à l'extrémité Nord-Ouest d'un bâtiment à usage d'habitation composé de 5 logements, ce plateau bénéficie d'une toiture entièrement révisée, de fenêtres et portes en PVC double vitrage ainsi qu'une façade neuve.
Tous les travaux de raccordements (eaux + électricité) et évacuations sont effectués !
Nous sommes en mesure de vous accompagner sur la partie travaux: chiffrage, devis, mise en relation avec les artisans.
Les + du produit :
Un terrain de 458m².
Une place de parking
Si vous souhaitez être propriétaire d'un duplex, acheter un plateau à aménager est la meilleure solution. Même en comptant les travaux de gros oeuvre et de personnalisation, le budget reste bien en dessous du prix d'une habitation déjà réhabilitée. De plus vous bénéficiez d'AVANTAGES FISCAUX pour les acquéreurs en résidence principale et de DÉFICIT FONCIER pour les acquéreurs souhaitant acheter pour louer.
Alors amateurs de travaux, n'hésitez plus et contactez, dès aujourd'hui, Fabrice Lacombe, Agent Commercial enregistré au RSAC de Bourg en Bresse sous le n° 884 089 491.
Les honoraires sont charge vendeur.
Voir plus

Référence: 20014-LOT A-TERACYTE2
Bien en copropriété. Nombre de lots : 13.
Honoraires à la charge du vendeur.
Barème des honoraires

Prêt immobilier

Vous souhaitez connaître votre capacité d’emprunt et trouver le meilleur crédit immobilier ?
Réaliser une simulation gratuite

Appartement à VANDEINS
Appartement à VANDEINS
Appartement à VANDEINS
Appartement à VANDEINS
Appartement à VANDEINS
Appartement à VANDEINS
Appartement à VANDEINS
Appartement à VANDEINS
Appartement à VANDEINS
Ce site est protégé par reCAPTCHA la Politique de confidentialité et les Conditions d’utilisation de Google s’appliquent.
Obtenir un prêt immobilier au meilleur taux ?

En poursuivant votre navigation sans modifier vos paramètres, vous acceptez l'utilisation de cookies susceptibles de réaliser des statistiques de visite. Cliquez ici pour plus d'informations