Terrain au calme 2300 m2 plein sud

— Brue-Auriac 83119 —
187 500 €
2 300 m²
jardin

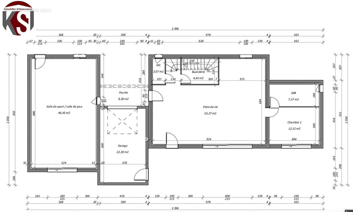
Brue AURIAC, Votre villa en bout d'impasse, sur un terrain de 2300 m2 exposé plein sud en situation dominante avec vue dégagée avec permis de construire accepté et purgé de tout recours. Villa de 153 m2 habitable avec garage. Il est possible de modifier le permis. Viabilités dont le tout à l'égout en bordure. Mandat 620-7 Les informations sur les risques auxquels ce bien est exposé sont disponibles sur le site georisques.gouv.fr.

Honoraires à la charge du vendeur.
Barème des honoraires

Prêt immobilier

Vous souhaitez connaître votre capacité d’emprunt et trouver le meilleur crédit immobilier ?
Réaliser une simulation gratuite

Terrain à BRUE-AURIAC
Terrain à BRUE-AURIAC
Terrain à BRUE-AURIAC
Terrain à BRUE-AURIAC
Terrain à BRUE-AURIAC
Ce site est protégé par reCAPTCHA la Politique de confidentialité et les Conditions d’utilisation de Google s’appliquent.
Obtenir un prêt immobilier au meilleur taux ?

En poursuivant votre navigation sans modifier vos paramètres, vous acceptez l'utilisation de cookies susceptibles de réaliser des statistiques de visite. Cliquez ici pour plus d'informations