Bénéficiez des services de nos partenaires locaux soigneusement sélectionnés
pour vous accompagner dans votre parcours d'achat immobilier

Maison saint amant de nouere 5 pièce(s) 150 m2

— Saint-Amant-De-Nouere 16170 —
127 800 €
150 m² / 3 394 m²
5 pièces
parkingbalcon/terrassejardin

Nos partenaires locaux
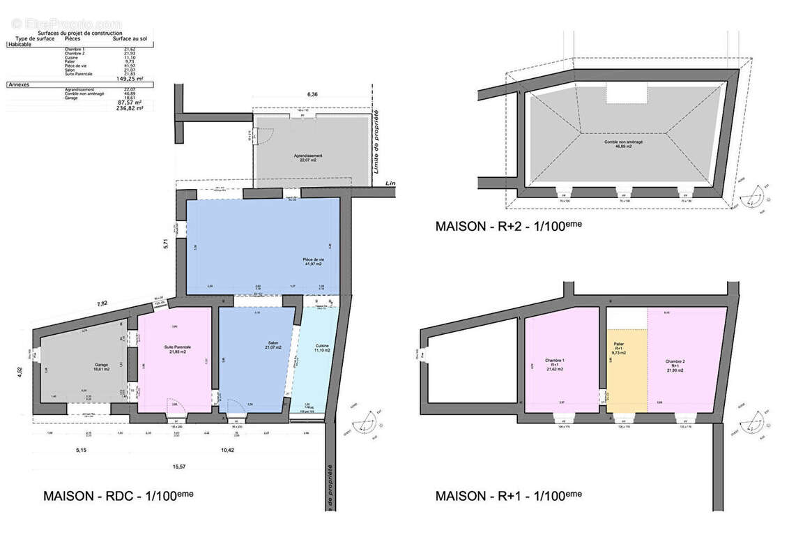
Une exclusivité de l'agence Stéphane Plaza Immobilier Angoulême. Un projet rare à saisir : une maison charentaise à fort potentiel sur 3 000 m² sans vis-à-vis. Votre future maison vient d'être mise en vente ! Actuellement de 150 m² habitables, ce bien offre un potentiel d'extension exceptionnel jusqu'à 236 m² (5 chambres, 2 salles d'eau, etc.), pour une surface totale adaptable à vos besoins. Sur un terrain de 3 000 m² sans vis-à-vis, ce bien rare allie charme authentique et possibilités d'aménagement. La maison, typiquement charentaise, séduit par son volume généreux et sa luminosité, avec une pièce de vie traversante de 77 m² (orientation Nord-Sud) aux hauteurs sous plafond impressionnantes. Distribution actuelle et potentiel : Rez-de-chaussée : une buanderie avec WC, une salle de bain à créer (espace prévu) et une chambre en devenir (à finaliser). Étage : deux grandes pièces à aménager en chambres et salle d'eau. Comble : un dernier niveau potentiellement aménageable. Atouts techniques: Assainissement récent (conforme et fonctionnel). Cuve de récupération d'eau de pluie installée (économies et écologie). Un coup de coeur à personnaliser : cette maison, alliant cachet traditionnel et modernité, n'attend que votre touche pour devenir un havre de paix sur mesure. Visitez-la sans tarder. Une visite virtuelle de ce bien est disponible dans votre agence au 15 Boulevard de Bury à Angoulême. (6.50 % honoraires TTC à la charge de l'acquéreur.) Julien SOLBES (EI) Agent Commercial - Numéro RSAC : 803 096 304 - ANGOULEME.
Voir plus

Référence: 1108
Honoraires d'agence de 6.5% à la charge de l'acquéreur
Barème des honoraires

Prêt immobilier

Vous souhaitez connaître votre capacité d’emprunt et trouver le meilleur crédit immobilier ?
Réaliser une simulation gratuite

Maison à SAINT-AMANT-DE-NOUERE
Maison à SAINT-AMANT-DE-NOUERE
Maison à SAINT-AMANT-DE-NOUERE
Maison à SAINT-AMANT-DE-NOUERE
Maison à SAINT-AMANT-DE-NOUERE
Maison à SAINT-AMANT-DE-NOUERE
Maison à SAINT-AMANT-DE-NOUERE
Maison à SAINT-AMANT-DE-NOUERE
Maison à SAINT-AMANT-DE-NOUERE
Maison à SAINT-AMANT-DE-NOUERE
Maison à SAINT-AMANT-DE-NOUERE
Maison à SAINT-AMANT-DE-NOUERE
Maison à SAINT-AMANT-DE-NOUERE
Maison à SAINT-AMANT-DE-NOUERE
Maison à SAINT-AMANT-DE-NOUERE
Maison à SAINT-AMANT-DE-NOUERE
Maison à SAINT-AMANT-DE-NOUERE
Maison à SAINT-AMANT-DE-NOUERE
Ce site est protégé par reCAPTCHA la Politique de confidentialité et les Conditions d’utilisation de Google s’appliquent.
Obtenir un prêt immobilier au meilleur taux ?

En poursuivant votre navigation sans modifier vos paramètres, vous acceptez l'utilisation de cookies susceptibles de réaliser des statistiques de visite. Cliquez ici pour plus d'informations