Bénéficiez des services de nos partenaires locaux soigneusement sélectionnés
pour vous accompagner dans votre parcours d'achat immobilier

Appartement t3 - riquet

— Toulouse 31000 —
415 000 €
64 m²
3 pièces
ascenseur

Nos partenaires locaux
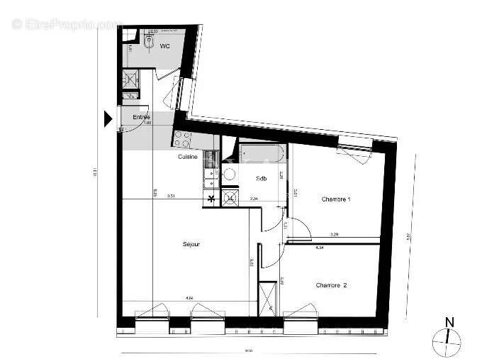
Découvrez ce charmant appartement situé dans le quartier Riquet à Toulouse. Cet appartement de 64 m², entièrement rénové en 2025, est idéalement agencé au deuxième étage d'un immeuble.

Dès votre entrée, vous serez séduit par l'espace de vie lumineux de 28,7 m² comprenant un séjour ouvert sur une cuisine équipée, offrant un cadre convivial pour recevoir vos proches.

Cet appartement dispose de deux chambres confortables, respectivement de 11,6 m² et 11 m², vous offrant des espaces de repos agréables et fonctionnels.

Une salle de bains moderne de 4,9 m² complète cet espace de vie, offrant confort et praticité au quotidien.

L'exposition est vous garantit une luminosité optimale tout au long de la journée, créant ainsi une atmosphère chaleureuse et accueillante.

Ne manquez pas cette occasion de vivre dans un appartement entièrement rénové, alliant modernité et confort, au cœur du quartier dynamique de Riquet à Toulouse.

Contactez-nous dès aujourd'hui pour organiser une visite et saisir cette opportunité.

Livraison fin Juillet 2026.
Voir plus

Référence: 924
Barème des honoraires

Prêt immobilier

Vous souhaitez connaître votre capacité d’emprunt et trouver le meilleur crédit immobilier ?
Réaliser une simulation gratuite

Appartement à TOULOUSE
Appartement à TOULOUSE
Appartement à TOULOUSE
Ce site est protégé par reCAPTCHA la Politique de confidentialité et les Conditions d’utilisation de Google s’appliquent.
Obtenir un prêt immobilier au meilleur taux ?

En poursuivant votre navigation sans modifier vos paramètres, vous acceptez l'utilisation de cookies susceptibles de réaliser des statistiques de visite. Cliquez ici pour plus d'informations