Bénéficiez des services de nos partenaires locaux soigneusement sélectionnés
pour vous accompagner dans votre parcours d'achat immobilier

Maison Piriac Sur Mer, vue mer sur l'île Dumet , 5 Chambres* , garage .

— Piriac-Sur-Mer 44420 —
999 000 €
170 m² / 850 m²
6 pièces
parkingjardin

Nos partenaires locaux
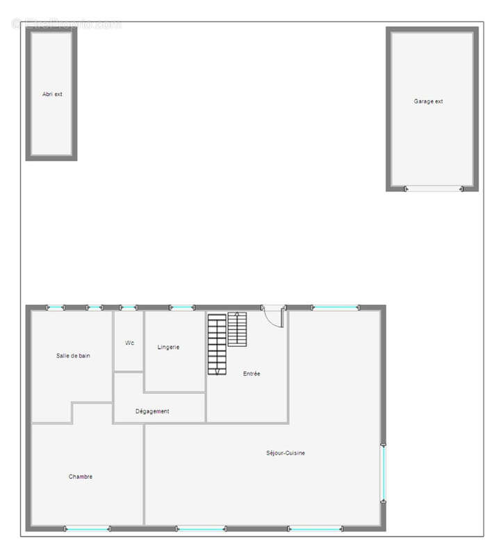
* Alphore Immobilier vous propose cette maison de 213 m² au sol , actuellement de 120m² habitables avec 2 chambres et une salle de bains à rénover (soit 50m² habitables supplémentaires) . Le tout sur 850 m² de terrain avec une vue magnifique et apaisante sur l'océan et l'île Dumet. * Au rez de chaussée la maison se compose d'une entrée , d'une petite cave , d'un cellier , d'un salon séjour en L avec cuisine équipée , d'une chambre , un WC et d'une salle de bains . (vue mer , assis , dans le séjour , la cuisine et dans la chambre parentale) * A l'étage , le pallier dessert une large chambre orientée mer et 3 autres chambres à rénover ( dont une chambre de plus de 28m² au sol ) * A noter : chauffage et production d'eau chaude électrique , double garage indépendant de 38m² , cabanon de jardin et bûché , 2 larges terrasses sur l'avant et l'arrière de la propriété , cheminée avec insert, menuiseries aluminium avec volets roulants motorisés. * Pour de plus amples informations ou pour visiter , n'hésitez pas à me contacter , Matthieu Druelle ,Alphore Immobilier. Matthieu DRUELLE (EI) Agent Commercial - Numéro RSAC : 2021AC00190 - SAINT NAZAIRE.
Voir plus

Référence: Madr1462
Honoraires à la charge du vendeur.
DPE
A
B
C
D
E
F
G
GES
A
B
C
D
E
F
G
Maison à PIRIAC-SUR-MER
Maison à PIRIAC-SUR-MER
Maison à PIRIAC-SUR-MER
Maison à PIRIAC-SUR-MER
Maison à PIRIAC-SUR-MER
Maison à PIRIAC-SUR-MER
Maison à PIRIAC-SUR-MER
Maison à PIRIAC-SUR-MER
Maison à PIRIAC-SUR-MER
Maison à PIRIAC-SUR-MER
Maison à PIRIAC-SUR-MER
Maison à PIRIAC-SUR-MER
Maison à PIRIAC-SUR-MER
Géorisques

Les informations sur les risques auxquels ce bien est exposé sont disponibles sur le site Géorisques : www.georisques.gouv.fr

Ce site est protégé par hCaptcha Politique de confidentialité et Conditions d’utilisation s’appliquent.

En poursuivant votre navigation sans modifier vos paramètres, vous acceptez l'utilisation de cookies susceptibles de réaliser des statistiques de visite. Cliquez ici pour plus d'informations