Appartement neuf - petite synthe - t2 de 45.9 m2

— Dunkerque 59640 —
117 471 €
46 m²
2 pièces
balcon/terrasseascenseur

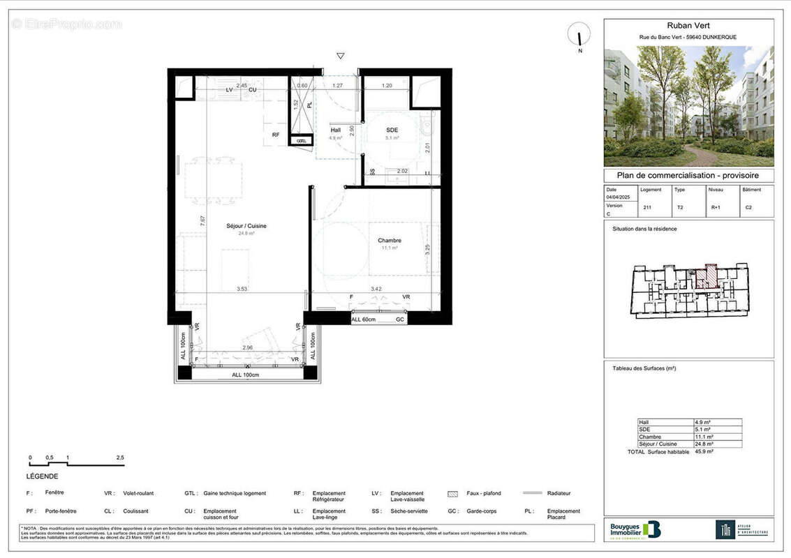
Situé dans un nouveau programme immobilier à Petite-Synthe. L'agence Sixième Avenue vous propose en VEFA cet appartement neuf de type T2 de 45.9m². L'appartement se compose d'une chambre confortable, d'un séjour avec cuisine ouverte, d'une salle d'eau, d'un hall d'entrée ainsi que d'un balcon, idéale pour profiter de la lumière naturelle tout au long de la journée. Ce programme offre un cadre de vie moderne, fonctionnel et lumineux, dans un quartier en pleine transformation (ANRU). Il a été conçu pour répondre aux attentes actuelles en matière de confort et de performance énergétique. Il représente une belle opportunité, que ce soit pour un premier achat, un projet de résidence principale ou un investissement locatif. L'environnement est agréable et pratique, avec un accès rapide aux commerces, écoles, transports en commun et principaux axes routiers. La livraison est prévue à partir du troisième trimestre 2027. D'autres appartements, du T2 au T4, sont également disponibles à la vente au sein de ce programme. Pour plus d'informations, pour consulter les plans ou pour connaître les modalités de réservation, n'hésitez pas à nous contacter. Copropriété de 60 lots - dont 60 lots habitation. (Pas de procédure en cours). Charges annuelles : 1200 euros.
Voir plus

Référence: 824
Bien en copropriété. Nombre de lots : 60. Charges de copropriété : 1200 €.
Honoraires à la charge du vendeur.
Barème des honoraires
DPE
A
B
C
D
E
F
G
GES
A
B
C
D
E
F
G

Prêt immobilier

Vous souhaitez connaître votre capacité d’emprunt et trouver le meilleur crédit immobilier ?
Réaliser une simulation gratuite

Appartement à DUNKERQUE
Appartement à DUNKERQUE
Appartement à DUNKERQUE
Ce site est protégé par reCAPTCHA la Politique de confidentialité et les Conditions d’utilisation de Google s’appliquent.
Obtenir un prêt immobilier au meilleur taux ?

En poursuivant votre navigation sans modifier vos paramètres, vous acceptez l'utilisation de cookies susceptibles de réaliser des statistiques de visite. Cliquez ici pour plus d'informations