Bénéficiez des services de nos partenaires locaux soigneusement sélectionnés
pour vous accompagner dans votre parcours d'achat immobilier

Appartement t2 à saxe gambetta - lyon 7

— Lyon-7e 69007 —
140 000 €
33 m²
2 pièces

Nos partenaires locaux
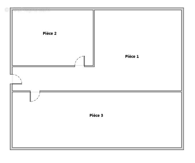
Situé 57 rue Saint Michel à 3 minutes du métro Saxe Gambetta et de la Place Saint Louis , venez découvrir cet appartement de 22 M² carrez + 11 M² au sol situé au 4ème et dernier étage d'un immeuble de 1800. Le DPE est actuellement en "E" mais la réforme de janvier 2026 va le passer en "D" car l'appartement est tout à l'électrique. Charges de copropriétés : 15 euros par mois pour l'entretien des parties communes. L'eau froide est individuelle, l'eau chaude et le chauffage sont individuels électriques. Contactez Monsieur VAIRON au O6 O3 O6 58 O8. Copropriété de 38 lots - dont 38 lots habitation. (Pas de procédure en cours). Charges annuelles : 180 euros.
Voir plus

Bien en copropriété. Nombre de lots : 38. Charges de copropriété : 180 €.
Honoraires à la charge du vendeur.
DPE
A
B
C
D
E
F
G
GES
A
B
C
D
E
F
G

Prêt immobilier

Vous souhaitez connaître votre capacité d’emprunt et trouver le meilleur crédit immobilier ?
Réaliser une simulation gratuite

Appartement à LYON-7E
Appartement à LYON-7E
Appartement à LYON-7E
Appartement à LYON-7E
Appartement à LYON-7E
Appartement à LYON-7E
Ce site est protégé par reCAPTCHA la Politique de confidentialité et les Conditions d’utilisation de Google s’appliquent.
Obtenir un prêt immobilier au meilleur taux ?

En poursuivant votre navigation sans modifier vos paramètres, vous acceptez l'utilisation de cookies susceptibles de réaliser des statistiques de visite. Cliquez ici pour plus d'informations