Bénéficiez des services de nos partenaires locaux soigneusement sélectionnés
pour vous accompagner dans votre parcours d'achat immobilier

Maison de plain-pied 105 m2 - proche gare tgv - valence

— Valence 26000 —
335 000 €
105 m² / 2 400 m²
5 pièces
parkingjardinpiscine

Nos partenaires locaux
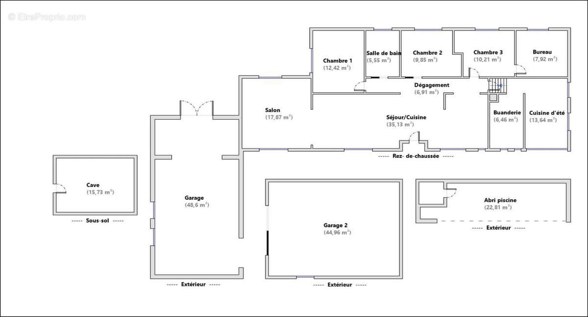
Je vous propose cette maison de plain-pied, située en campagne entre Valence et Chabeuil, offrant 105 m2 habitables. Le bien est composé d'un salon/séjour d'environ 40 m2, avec son poêle à bois et sa cuisine ouverte de 11 m2, donnant sur sa terrasse. Le couloir vient desservir 3 chambres de 10, 11 et 12 m2, un bureau, une salle de bains avec meuble double vasque, et un wc.
L'ensemble repose sur un terrain de 2400 m2 bénéficiant de l'eau d'irrigation, avec un espace piscine, ainsi qu'un ensemble de dépendance, hangar, cave et garage, idéal pour des réalisations diverses, qu'elles soient professionnelles ou personnelles. Egalement, un terrain à l'arrière de l'habitation complète ce bien, se prêtant à de multiples aménagements,
Maison à remettre au goût du jour, avec quelques travaux à prévoir,
Située à 15 min de la gare TGV, laissez vous séduire par ce beau potentiel ! - Annonce rédigée et publiée par un Agent Mandataire -
Voir plus

Référence: 24331
Honoraires à la charge du vendeur.
Barème des honoraires
DPE
A
B
C
D
E
F
G
GES
A
B
C
D
E
F
G

Prêt immobilier

Vous souhaitez connaître votre capacité d’emprunt et trouver le meilleur crédit immobilier ?
Réaliser une simulation gratuite

Maison à VALENCE
Maison à VALENCE
Maison à VALENCE
Maison à VALENCE
Maison à VALENCE
Maison à VALENCE
Maison à VALENCE
Maison à VALENCE
Maison à VALENCE
Maison à VALENCE
Maison à VALENCE
Maison à VALENCE
Maison à VALENCE
Maison à VALENCE
Ce site est protégé par reCAPTCHA la Politique de confidentialité et les Conditions d’utilisation de Google s’appliquent.
Obtenir un prêt immobilier au meilleur taux ?

En poursuivant votre navigation sans modifier vos paramètres, vous acceptez l'utilisation de cookies susceptibles de réaliser des statistiques de visite. Cliquez ici pour plus d'informations