Bénéficiez des services de nos partenaires locaux soigneusement sélectionnés
pour vous accompagner dans votre parcours d'achat immobilier

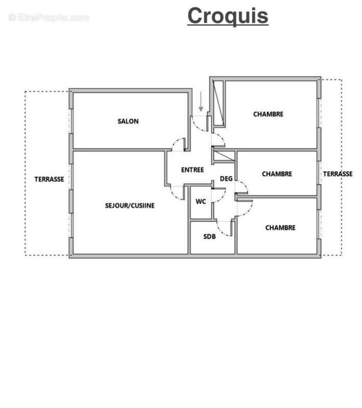
5 pièces avec terrasse parking et cave

— Menton 06500 —
302 000 €
79 m²
5 pièces
parkingbalcon/terrasse

Nos partenaires locaux
RARE SUR LE MARCHE, en exclusivité dans le quartier recherché du Borrigo.
Venez découvrir ce spacieux 5 pièces d'environ 80 m2 avec un parking privé et une cave.
En bon état général il offre une très belle luminosité grâce à sa double exposition est-ouest.
Il dispose de 4 chambres et une spacieuse terrasse de 23 m2 pour de bons moments en famille.
A proximité des écoles, commerces, ligne de bus et accès autoroute
Un parking extérieur privé et une cave complètent ce bien idéal pour une famille d'actifs
Très beau potentiel ! Tout est là pour vous plaire. Contactez nous pour une visite !!!
Voir plus

Référence: 168
Bien en copropriété. Nombre de lots : 518. Charges de copropriété : 3150 €.
Honoraires d'agence de 4.14% à la charge de l'acquéreur
Barème des honoraires
DPE
A
B
C
D
E
F
G
GES
A
B
C
D
E
F
G

Prêt immobilier

Vous souhaitez connaître votre capacité d’emprunt et trouver le meilleur crédit immobilier ?
Réaliser une simulation gratuite

Appartement à MENTON
Appartement à MENTON
Appartement à MENTON
Appartement à MENTON
Appartement à MENTON
Appartement à MENTON
Appartement à MENTON
Appartement à MENTON
Appartement à MENTON
Appartement à MENTON
Appartement à MENTON
Ce site est protégé par reCAPTCHA la Politique de confidentialité et les Conditions d’utilisation de Google s’appliquent.
Obtenir un prêt immobilier au meilleur taux ?

En poursuivant votre navigation sans modifier vos paramètres, vous acceptez l'utilisation de cookies susceptibles de réaliser des statistiques de visite. Cliquez ici pour plus d'informations