Appartement de 6 pièces sur 126,93 m2 carrez avec un balcon, 3 vérandas et un parking souterrain

— Nanterre 92000 —
593 250 €
127 m²
6 pièces
parkingbalcon/terrasse

- Appartement à fort potentiel situé à Nanterre dans le quartier de la Préfecture
Situé au cœur d’un environnement verdoyant, cet appartement bénéficie d’une triple exposition Est, Sud et Ouest, offrant des vues dégagées sur plusieurs espaces naturels :

À l’Est, le square George Pernoud avec en arrière-plan l’école de danse de l’Opéra de Paris et le quartier de La Défense
Au Sud, le Parc André Malraux
À l’Ouest, le square de la Brèche

- Luminosité, calme et volumes généreux
Implanté dans une vaste zone piétonne, l’appartement jouit d’un calme appréciable et d’une grande luminosité grâce à ses larges baies vitrées. Entièrement à rénover, il offre un fort potentiel pour les amateurs de grandes surfaces souhaitant personnaliser leur intérieur.
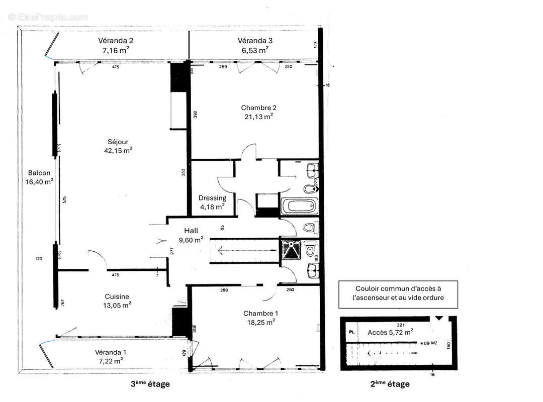
L’accès s’effectue par le deuxième étage via un palier privatif avec rangements, idéal pour vélos ou poussettes. Un escalier intérieur mène ensuite au logement situé au troisième étage.
- Agencement
Le hall d’entrée dessert :

Une cuisine indépendante
Un grand séjour lumineux, pouvant être remis dans son état d'origine pour offrir une chambre supplémentaire
Une salle d’eau avec W.C.
Des toilettes séparées
Une grande chambre pouvant être séparé en deux chambres indépendantes comme dans son état d'origine.
Un dégagement menant à une seconde grande chambre pouvant elle aussi être partagée en 2 chambres indépendantes, un dressing et une salle de bains avec W.C.

- Espaces extérieurs et stationnement

Balcon filant côté Sud
Trois balcons vitrés sur les façades Est et Ouest
Un emplacement de parking en sous-sol, accessible par ascenseur
En option : un second emplacement et un double box

- Accessibilité et cadre de vie
Excellente desserte en transports accessible à pied:

RER A Nanterre-Préfecture à 4 min et RER E Nanterre la Folie à 6 mn
La Défense Grande-Arche à 20 min (1 min 30 en RER A au départ de Nanterre)
Nanterre Université à 15 min
Nombreuses lignes de bus vers toute l’Île-de-France

La proximité immédiate de La Défense (15 à 20 min à pied via zone piétonne) constitue un atout majeur pour les actifs en quête d’opportunités professionnelles.
- Un cadre privilégié en proche banlieue
L’appartement s’inscrit dans un quartier résidentiel rare, entouré de squares arborés et d’un parc de 25 hectares avec pièce d’eau, pelouses accessibles et jardin de collection. De nombreuses activités culturelles, sportives et associatives sont proposées à proximité.
Crèches, écoles, centre aéré et commerces sont accessibles à pied.
- Valorisation future
Situé en lisière du secteur Seine-Arche et du projet du Grand Paris, le bien bénéficiera des infrastructures en cours de développement :

Gare RER E récemment mise en service
Futures lignes de métro 15 et 18
Nouveau tramway
Universités, grandes écoles et sièges sociaux en expansion

Cette annonce vous est proposée par DEFONTAINES Henri-François - EI - NoRSAC: 350709903, Enregistré à Greffe du tribunal de commerce de Nanterre - Annonce rédigée et publiée par un Agent Mandataire -
Voir plus

Bien en copropriété. Nombre de lots : 2. Charges de copropriété : 6854 €.
Honoraires d'agence de 5% à la charge de l'acquéreur
Barème des honoraires
DPE
A
B
C
D
E
F
G
GES
A
B
C
D
E
F
G

Prêt immobilier

Vous souhaitez connaître votre capacité d’emprunt et trouver le meilleur crédit immobilier ?
Réaliser une simulation gratuite

Appartement à NANTERRE
Appartement à NANTERRE
Appartement à NANTERRE
Appartement à NANTERRE
Appartement à NANTERRE
Appartement à NANTERRE
Appartement à NANTERRE
Appartement à NANTERRE
Appartement à NANTERRE
Appartement à NANTERRE
Appartement à NANTERRE
Appartement à NANTERRE
Appartement à NANTERRE
Appartement à NANTERRE
Appartement à NANTERRE
Appartement à NANTERRE
Appartement à NANTERRE
Ce site est protégé par reCAPTCHA la Politique de confidentialité et les Conditions d’utilisation de Google s’appliquent.
Obtenir un prêt immobilier au meilleur taux ?

En poursuivant votre navigation sans modifier vos paramètres, vous acceptez l'utilisation de cookies susceptibles de réaliser des statistiques de visite. Cliquez ici pour plus d'informations