Bénéficiez des services de nos partenaires locaux soigneusement sélectionnés
pour vous accompagner dans votre parcours d'achat immobilier

Maison 95 m² à Plozevet

— Plozevet 29710 —
148 000 €
95 m² / 901 m²
8 pièces
jardin

Nos partenaires locaux
Iad France - Jannick Gourmelun vous propose : * Opportunité Unique - Maison Traditionelle à Rénover - Plozévet *

Une maison traditionnelle attend son nouveau propriétaire au cOEur de Plozévet, offrant une surface habitable de 95.62 m² sur un terrain spacieux de 90Om². Cette propriété offre un potentiel incroyable pour créer la maison de vos rêves dans un quartier paisible.

Située dans un quartier calme et résidentiel de Plozévet, cette maison sur deux étages nécessite des travaux de rénovation pour retrouver tout son charme d'antan.

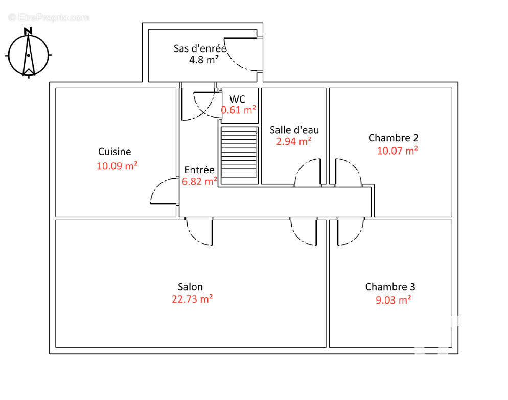
La distribution :

Au rez-de-chaussée surélevé, sas d'entrée, entrée, cuisine, wc, salon-séjour, salle d'eau, 2 chambres

Au rez-de-jardin, une chambre, un espace cuisine, deux pièces à aménager (point d'eau et wc existants)

La situation de la propriété est idéale, offrant un cadre de vie tranquille tout en étant à 300m des commerces et commodités.
Profitez de la proximité des plages, des sentiers de randonnée et des sites naturels exceptionnels de Plozévet et des alentours.

Ne manquez pas cette occasion unique de rénover une maison traditionnelle et de créer votre propre oasis personnelle.
CONTACT PAR MAIL UNIQUEMENT

Honoraires d'agence à la charge de l'acquéreur. Prix honoraires inclus : 148000 euros. Prix hors honoraires : 140000 euros. Honoraires TTC à la charge de l'acquéreur (5,71% du prix du bien hors honoraires) : 8000 euros.
Information d'affichage énergétique sur ce bien : classe ENERGIE F indice 417 et classe CLIMAT C indice 17. Les informations sur les risques auxquels ce bien est exposé, y compris l'obligation légale de débroussaillement, sont disponibles sur le site Géorisques : http://www.georisques.gouv.fr.
La présente annonce immobilière a été rédigée sous la responsabilité éditoriale de Mme Jannick Gourmelun mandataire indépendant en immobilier (sans détention de fonds), agent commercial de la SAS I@D France immatriculé au RSAC de QUIMPER sous le numéro 904985173, titulaire de la carte de démarchage immobilier pour le compte de la société I@D France SAS.Informations LOI ALUR : Honoraires charge acquéreur. Prix hors honoraires : 140 000 ¤. (gedeon_6727_32006390)
Voir plus

Référence: 1863408
Honoraires à la charge de l'acquéreur.
Barème des honoraires
DPE
A
B
C
D
E
F
G
GES
A
B
C
D
E
F
G
Photo 1 - Maison à PLOZEVET
Photo 1
Photo 2 - Maison à PLOZEVET
Photo 2
Photo 3 - Maison à PLOZEVET
Photo 3
Photo 4 - Maison à PLOZEVET
Photo 4
Photo 5 - Maison à PLOZEVET
Photo 5
Photo 6 - Maison à PLOZEVET
Photo 6
Photo 7 - Maison à PLOZEVET
Photo 7
Photo 8 - Maison à PLOZEVET
Photo 8
Photo 9 - Maison à PLOZEVET
Photo 9
Géorisques

Les informations sur les risques auxquels ce bien est exposé sont disponibles sur le site Géorisques : www.georisques.gouv.fr

Ce site est protégé par hCaptcha Politique de confidentialité et Conditions d’utilisation s’appliquent.

En poursuivant votre navigation sans modifier vos paramètres, vous acceptez l'utilisation de cookies susceptibles de réaliser des statistiques de visite. Cliquez ici pour plus d'informations