Bénéficiez des services de nos partenaires locaux soigneusement sélectionnés
pour vous accompagner dans votre parcours d'achat immobilier

Programme Neuf Proche Plage

— Saint-Jean-De-Monts 85160 —
179 500 €
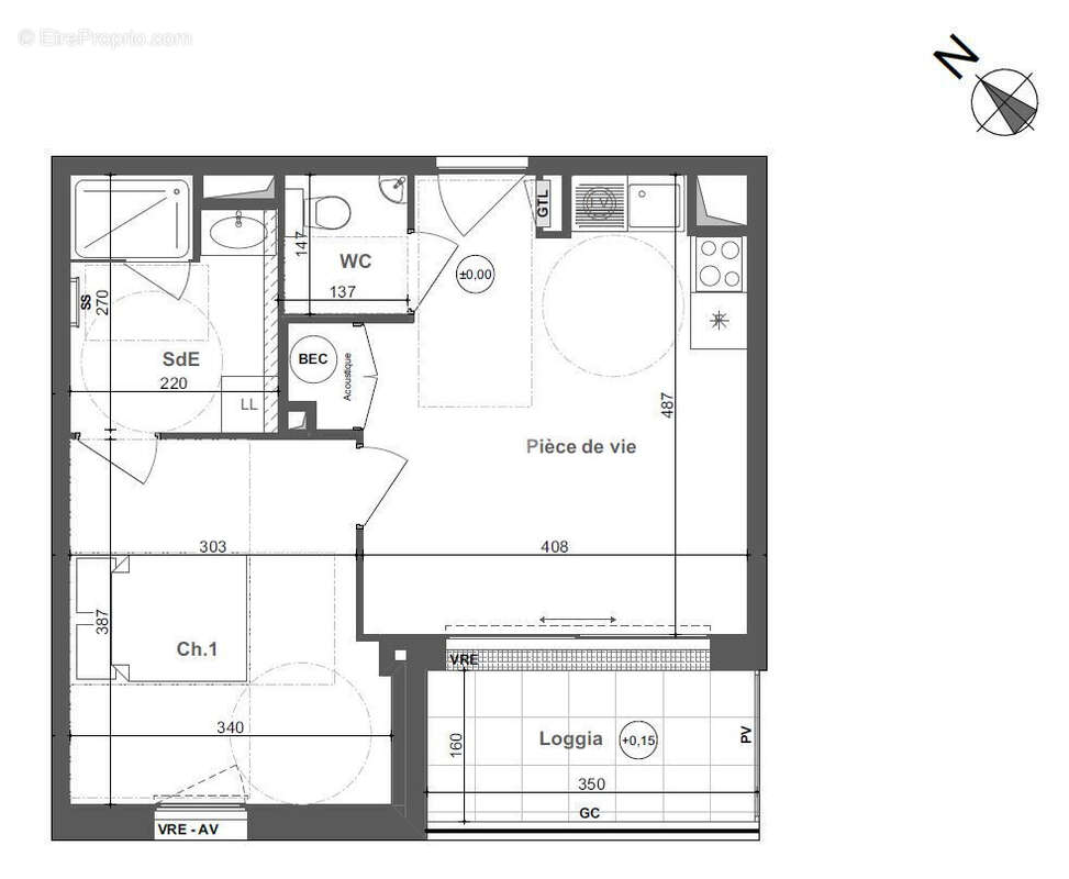
39 m²
2 pièces
parkingbalcon/terrasseascenseur

Nos partenaires locaux
A VENDRE - PROGRAMME NEUF - SAINT JEAN DE MONTS Devenez propriétaire à deux pas de l'océan, à Saint-Jean-de-Monts ! A seulement 400 mètres de la plage des Demoiselles, découvrez la résidence neuve CYMO, idéalement située, dans un quartier paisible de la Plage des Demoiselles. Pensée pour votre confort au quotidien, cette résidence à taille humaine propose 23 appartements, du studio au T4, répartis sur seulement trois étages. Son architecture balnéaire s'intègre parfaitement dans son environnement côtier. Chaque logement bénéficie d'un espace de vie lumineux, prolongé par un balcon ou une terrasse, pour profiter pleinement de l'air marin. Les prestations intérieures ont été soigneusement sélectionnées : sols stratifiés dans les chambres, carrelage et faïence dans les pièces d'eau, menuiseries de qualité, etc. La résidence est équipée d'un ascenseur et dispose d'un parking extérieur sécurisé, pour vous garantir tranquillité et accessibilité. Livraison 3e trimestre 2027 Réf.10561-102 Pour toute information complémentaire ou visite, contactez-nous au [Coordonnées masquées] ou par mail [Coordonnées masquées]
Voir plus

Honoraires à la charge du vendeur.
Barème des honoraires
Appartement à SAINT-JEAN-DE-MONTS
Appartement à SAINT-JEAN-DE-MONTS
Appartement à SAINT-JEAN-DE-MONTS
Géorisques

Les informations sur les risques auxquels ce bien est exposé sont disponibles sur le site Géorisques : www.georisques.gouv.fr

Ce site est protégé par hCaptcha Politique de confidentialité et Conditions d’utilisation s’appliquent.