Bénéficiez des services de nos partenaires locaux soigneusement sélectionnés
pour vous accompagner dans votre parcours d'achat immobilier

Appartement avec balcon dans une résidence avec ascenseur en centre ville de nancy

— Nancy 54000 —
179 000 €
83 m²
3 pièces
parkingbalcon/terrasseascenseur

Nos partenaires locaux
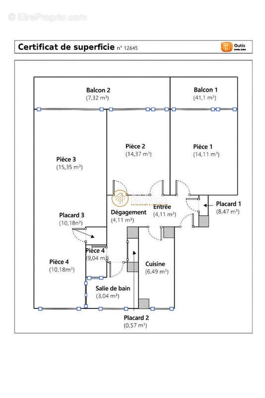
Emplacement Premium à Nancy : Appartement 4 pièces de 83 m² avec deux balcons. L'agence Majorelle vous propose une nouvelle opportunité en Hyper-centre de Nancy : Situé Rue du Docteur Schmitt, au coeur d'un quartier recherché de Nancy, découvrez cet appartement lumineux et traversant de 83 m² au sein d'une copropriété calme, sécurisée et sans vis-à-vis. Vous serez séduits par : - Une entrée élégante avec rangements intégrés - Un séjour spacieux et convivial, prolongé par un balcon ensoleillé - Une cuisine ouverte offrant un bel espace de vie - Deux chambres lumineuses, idéales pour accueillir une famille ou créer un bureau - Une salle d'eau avec douche - Un second balcon, parfait pour profiter des beaux jours Points forts : -Appartement très lumineux et bien agencé. -Emplacement stratégique et premium, proche des commodités, transports et vie de quartier. -Copropriété sécurisée et paisible. -Possibilité d'acquérir une place de parking sécurisée en supplément (Parking Saint-Dizier). Un bien à rafraîchir mais offrant un potentiel exceptionnel afin de vous offrir un cadre de vie à votre image, dans l'un des secteurs les plus prisés de Nancy. Contactez nous dès aujourd'hui pour venir découvrir cet appartement rare sur le secteur. Les informations sur les risques auxquels ce bien est exposé sont disponibles sur le site Géorisques : www.georisques.gouv.fr Copropriété de 106 lots - dont 38 lots habitation. (Pas de procédure en cours). Charges annuelles : 3188 euros.
Voir plus

Honoraires à la charge du vendeur.
Barème des honoraires
DPE
A
B
C
D
E
F
G
GES
A
B
C
D
E
F
G

Prêt immobilier

Vous souhaitez connaître votre capacité d’emprunt et trouver le meilleur crédit immobilier ?
Réaliser une simulation gratuite

Appartement à NANCY
Appartement à NANCY
Appartement à NANCY
Appartement à NANCY
Appartement à NANCY
Appartement à NANCY
Appartement à NANCY
Appartement à NANCY
Appartement à NANCY
Appartement à NANCY
Ce site est protégé par reCAPTCHA la Politique de confidentialité et les Conditions d’utilisation de Google s’appliquent.
Obtenir un prêt immobilier au meilleur taux ?

En poursuivant votre navigation sans modifier vos paramètres, vous acceptez l'utilisation de cookies susceptibles de réaliser des statistiques de visite. Cliquez ici pour plus d'informations