Vence - immeuble de rapport de 276 m² à vendre

— Vence 06140 —
880 000 €
276 m²
6 pièces

Vence,

Projet destiné à un investissement en mono propriété.

A l’entrée de la vieille ville et à proximité immédiate de commerces et restaurants, cet immeuble d’habitation et commerces élevé de 2 étages d'une surface totale de 276 m² (potentiel d'environ 300 m²) est idéal pour un investissement et une gestion en bon père de famille.

Destiné à de l’investissement longue durée ou de courte durée, il est composé comme suit :

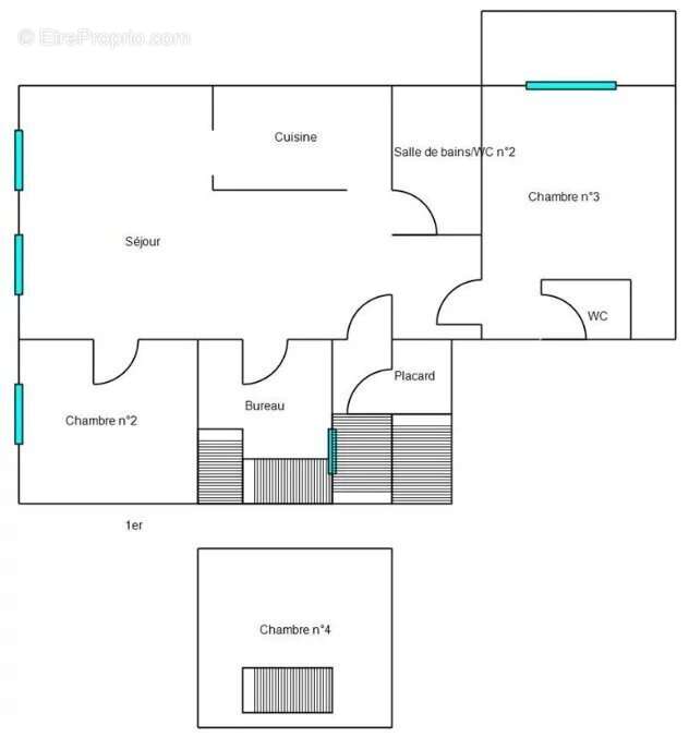
En RDC, 2 locaux commerciaux sur rue pouvant être reliés entre eux.

Au 1er niveau, un 3 pièces occupé (la locataire cherche à partir dans un appartement plus petit), un 2 pièces et au dernier niveau un 4 pièces avec terrasse (ce dernier peut être divisé en récupérant un volume d’environ 30 m² sous toiture).

La surface des appartements est de 192 m² (47, 54 et 91 m²)
La surface des locaux est de 83 m² (57 et 25 m²)

Pas de charges de copropriété
Parking public à 20 mètres
Chaque appartement a son propre Linki
Prévoir travaux

Nb de lots : 5 ; Charges/an : 0 € ; TF 2024 : 3392 €
DPE 2025 :
C & A pour les 2 appartements du 1er étage
E & B pour le 4 pièces au 2ème étage
Les informations sur les risques auxquels ce bien est exposé sont disponibles sur le site Géorisques : georisques.gouv.fr
Honoraires agence de 5% TTC inclus à charge vendeur.
Voir plus
DPE
A
B
C
D
E
F
G
GES
A
B
C
D
E
F
G

Prêt immobilier

Vous souhaitez connaître votre capacité d’emprunt et trouver le meilleur crédit immobilier ?
Réaliser une simulation gratuite

Appartement à VENCE
Appartement à VENCE
Appartement à VENCE
Appartement à VENCE
Appartement à VENCE
Appartement à VENCE
Appartement à VENCE
Ce site est protégé par reCAPTCHA la Politique de confidentialité et les Conditions d’utilisation de Google s’appliquent.
Obtenir un prêt immobilier au meilleur taux ?

En poursuivant votre navigation sans modifier vos paramètres, vous acceptez l'utilisation de cookies susceptibles de réaliser des statistiques de visite. Cliquez ici pour plus d'informations