Bénéficiez des services de nos partenaires locaux soigneusement sélectionnés
pour vous accompagner dans votre parcours d'achat immobilier

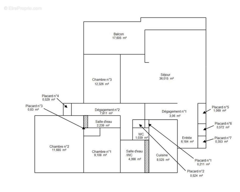
Appartement t5 - 106 m² - tours

— Tours 37000 —
318 000 €
106 m²
5 pièces
ascenseur

Nos partenaires locaux
Dans une résidence sécurisée au coeur d'un cadre verdoyant avec son parc arboré, découvrez cet appartement lumineux de 106 m² bénéficiant d'une agréable terrasse exposée ouest avec vue dégagée sur le parc. Il se compose d'une belle entrée avec rangements, d'un double salon-séjour spacieux et lumineux, d'une cuisine indépendante aménagée, de trois chambres dont une avec balcon, de deux salles d'eau et de deux WC. De nombreux rangements viennent compléter l'ensemble. Une place de parking extérieure ainsi qu'une cave complètent ce bien. (6.00 % honoraires TTC à la charge de l'acquéreur.) Copropriété de 331 lots - dont 110 lots habitation. (Pas de procédure en cours). Charges annuelles : 5092 euros.
Voir plus

Référence: 13800
Bien en copropriété. Nombre de lots : 331. Charges de copropriété : 5092 €.
Honoraires d'agence de 6% à la charge de l'acquéreur
Barème des honoraires
DPE
A
B
C
D
E
F
G
GES
A
B
C
D
E
F
G

Prêt immobilier

Vous souhaitez connaître votre capacité d’emprunt et trouver le meilleur crédit immobilier ?
Réaliser une simulation gratuite

Appartement à TOURS
Appartement à TOURS
Appartement à TOURS
Appartement à TOURS
Appartement à TOURS
Appartement à TOURS
Appartement à TOURS
Appartement à TOURS
Appartement à TOURS
Ce site est protégé par reCAPTCHA la Politique de confidentialité et les Conditions d’utilisation de Google s’appliquent.
Obtenir un prêt immobilier au meilleur taux ?

En poursuivant votre navigation sans modifier vos paramètres, vous acceptez l'utilisation de cookies susceptibles de réaliser des statistiques de visite. Cliquez ici pour plus d'informations