Bénéficiez des services de nos partenaires locaux soigneusement sélectionnés
pour vous accompagner dans votre parcours d'achat immobilier

Terrain montreuil 117 m2

— Montreuil 93100 —
289 000 €
117 m²
jardin

Nos partenaires locaux
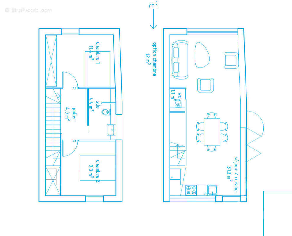
TERRAIN AVEC PERMIS DE CONSTRUIRE ACCORDÉ Situé à 7 minutes à pied du métro Mairie de Montreuil, dans un environnement résidentiel calme et familial, nous vous proposons un terrain de 117m2 sur lequel un projet de construction est autorisé (permis de construire accordé). Les caractéristiques du projet conçu par architecte : une maison d'une surface totale de 65m2 édifiée sur deux niveaux et comprenant au rez-de-chaussée un grand salon-séjour avec cuisine ouverte de 32m2 , un WC séparé. A l'étage deux chambres, dégagement, salle d'eau + WC. Le plan et l'agencement sont optimisés et sans perte de place. Le projet est conçu pour que la maison dispose de deux extérieurs avec deux ambiances. Un jardin à l'avant de 58m2 et une terrasse de 14m2. Demandez plus de renseignements au [Coordonnées masquées]. Consultation du dossier de PC sur demande. (7.04 % honoraires TTC à la charge de l'acquéreur.)
Voir plus

Référence: 3906
Honoraires d'agence de 7.04% à la charge de l'acquéreur
Barème des honoraires

Prêt immobilier

Vous souhaitez connaître votre capacité d’emprunt et trouver le meilleur crédit immobilier ?
Réaliser une simulation gratuite

Terrain à MONTREUIL
Terrain à MONTREUIL
Ce site est protégé par reCAPTCHA la Politique de confidentialité et les Conditions d’utilisation de Google s’appliquent.
Obtenir un prêt immobilier au meilleur taux ?

En poursuivant votre navigation sans modifier vos paramètres, vous acceptez l'utilisation de cookies susceptibles de réaliser des statistiques de visite. Cliquez ici pour plus d'informations