Bénéficiez des services de nos partenaires locaux soigneusement sélectionnés
pour vous accompagner dans votre parcours d'achat immobilier

Maison saint amant de nouere 5 pièce(s) 150 m2

— Saint-Genis-D'hiersac 16570 —
127 800 €
150 m² / 3 394 m²
5 pièces
parkingbalcon/terrassejardin

Nos partenaires locaux
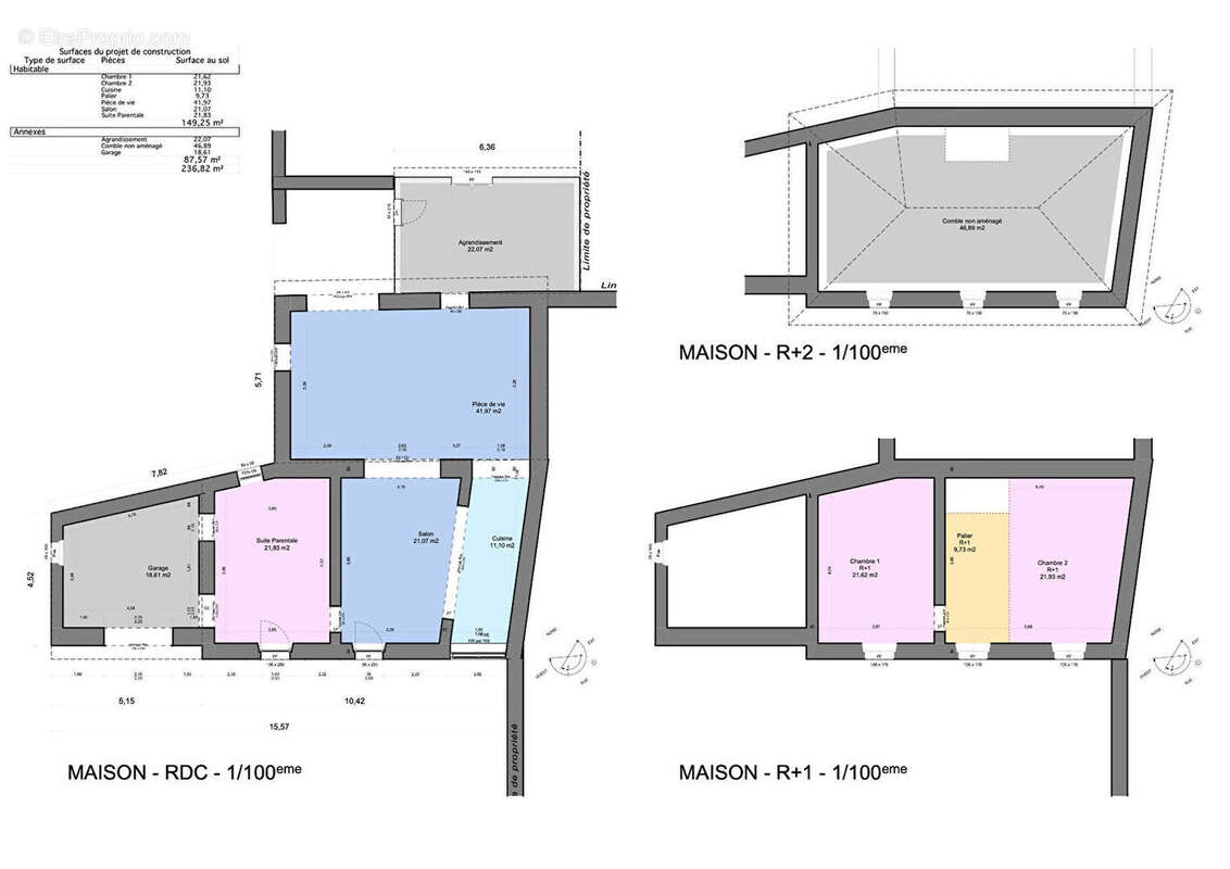
Une exclusivité de l'agence Stéphane Plaza Immobilier Angoulême. Un projet rare à saisir : une maison charentaise à fort potentiel sur 3 000 m² sans vis-à-vis. Votre future maison vient d'être mise en vente ! Actuellement de 150 m² habitables, ce bien offre un potentiel d'extension exceptionnel jusqu'à 236 m² (5 chambres, 2 salles d'eau, etc.), pour une surface totale adaptable à vos besoins. Sur un terrain de 3 000 m² sans vis-à-vis, ce bien rare allie charme authentique et possibilités d'aménagement. La maison, typiquement charentaise, séduit par son volume généreux et sa luminosité, avec une pièce de vie traversante de 77 m² (orientation Nord-Sud) aux hauteurs sous plafond impressionnantes. Distribution actuelle et potentiel : Rez-de-chaussée : une buanderie avec WC, une salle de bain à créer (espace prévu) et une chambre en devenir (à finaliser). Étage : deux grandes pièces à aménager en chambres et salle d'eau. Comble : un dernier niveau potentiellement aménageable. Atouts techniques: Assainissement récent (conforme et fonctionnel). Cuve de récupération d'eau de pluie installée (économies et écologie). Un coup de coeur à personnaliser : cette maison, alliant cachet traditionnel et modernité, n'attend que votre touche pour devenir un havre de paix sur mesure. Une visite virtuelle de ce bien est disponible dans votre agence au 15 Boulevard de Bury à Angoulême. (6.50 % honoraires TTC à la charge de l'acquéreur.) Julien SOLBES (EI) Agent Commercial - Numéro RSAC : 803 096 304 - ANGOULEME.
Voir plus

Référence: 1108
Honoraires d'agence de 6.5% à la charge de l'acquéreur
Barème des honoraires

Prêt immobilier

Vous souhaitez connaître votre capacité d’emprunt et trouver le meilleur crédit immobilier ?
Réaliser une simulation gratuite

Maison à SAINT-GENIS-D'HIERSAC
Maison à SAINT-GENIS-D'HIERSAC
Maison à SAINT-GENIS-D'HIERSAC
Maison à SAINT-GENIS-D'HIERSAC
Maison à SAINT-GENIS-D'HIERSAC
Maison à SAINT-GENIS-D'HIERSAC
Maison à SAINT-GENIS-D'HIERSAC
Maison à SAINT-GENIS-D'HIERSAC
Maison à SAINT-GENIS-D'HIERSAC
Maison à SAINT-GENIS-D'HIERSAC
Maison à SAINT-GENIS-D'HIERSAC
Maison à SAINT-GENIS-D'HIERSAC
Maison à SAINT-GENIS-D'HIERSAC
Maison à SAINT-GENIS-D'HIERSAC
Maison à SAINT-GENIS-D'HIERSAC
Maison à SAINT-GENIS-D'HIERSAC
Maison à SAINT-GENIS-D'HIERSAC
Maison à SAINT-GENIS-D'HIERSAC
Ce site est protégé par reCAPTCHA la Politique de confidentialité et les Conditions d’utilisation de Google s’appliquent.
Obtenir un prêt immobilier au meilleur taux ?

En poursuivant votre navigation sans modifier vos paramètres, vous acceptez l'utilisation de cookies susceptibles de réaliser des statistiques de visite. Cliquez ici pour plus d'informations