Bénéficiez des services de nos partenaires locaux soigneusement sélectionnés
pour vous accompagner dans votre parcours d'achat immobilier

maison de ville garage et jardin

— Cugnaux 31270 —
334 000 €
138 m² / 340 m²
5 pièces
parkingbalcon/terrassejardin

Nos partenaires locaux
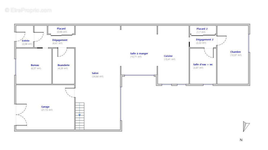
INTEGRAL IMMOBILIER, agence locale Cugnalaise, contact direct Charlotte BLANC : O6.13.87.93.71 CUGNAUX CENTRE VILLE, idéalement située à 400 mètres du L11 (Basso Cambo toutes les 10 minutes) à 220 mètres de la ligne de bus 87 et 321, à 650 mètres de l'école Jean Jaures, charmante maison de ville avec garage et jardin. Au rez de chaussée, grâce à un système ingénieux l'entrée à été isolée (phonique et thermique), puis vous trouverez un bureau de 8m2, une buanderie puis une vaste pièce de vie de 60m2 comprenannt la cuisine, une chambre de 11m2, une salle d'eau et un WC. A l'étage, deux chambres de 12.30 et 11.5 m2, un dégagement, une salle d'eau ainsi qu'un WC. Zone de stockage sous comble facile d'accès. Aussi le bien dispose d'un garage de 21m2 (travaux necessaires, élargissement de la porte, pour y entrer un véhicule). Exposée au Sud Ouest une terrasse en bois et un charmant jardin, le tout pour 200m2 environ, puits et abris. Double vitrage doublé côté rue, volets roulants électriques, chauffage électrique, poêle mixte pellets/bois avec extracteur de chaleur pour l'étage, climatisation réversible récente. Très bon état d'entretien, travaux de toiture récents. Classement énergétique C. Taxe foncière 1500€ environ.
Pour une visite et/ou plus d'informations contact Charlotte BLANC au O6.13.87.93.71. Agent commercial pour la SAS Integral Immobilier immatriculée au RSAC de Toulouse sous le No852.867.977
Villes proches : Toulouse, Frouzins, Villeneuve Tolosane, Muret, Portet sur Garonne, Tournefeuille, Colomiers... Intégral Immobilier : 16, r de la République 31270 Frouzins - [Coordonnées masquées]. Vente, Viager, Location, Gestion, Entreprise.
Voir plus

Honoraires d'agence de 4.38% à la charge de l'acquéreur
Barème des honoraires
DPE
A
B
C
D
E
F
G
GES
A
B
C
D
E
F
G
Maison à CUGNAUX
Maison à CUGNAUX
Maison à CUGNAUX
Maison à CUGNAUX
Maison à CUGNAUX
Maison à CUGNAUX
Maison à CUGNAUX
Maison à CUGNAUX
Maison à CUGNAUX
Maison à CUGNAUX
Maison à CUGNAUX
Maison à CUGNAUX
Maison à CUGNAUX
Maison à CUGNAUX
Maison à CUGNAUX
Géorisques

Les informations sur les risques auxquels ce bien est exposé sont disponibles sur le site Géorisques : www.georisques.gouv.fr

Ce site est protégé par hCaptcha Politique de confidentialité et Conditions d’utilisation s’appliquent.

En poursuivant votre navigation sans modifier vos paramètres, vous acceptez l'utilisation de cookies susceptibles de réaliser des statistiques de visite. Cliquez ici pour plus d'informations