Terrain sartrouville 616 m² - 13 minutes de la gare

— Sartrouville 78500 —
525 000 €
616 m²
jardin

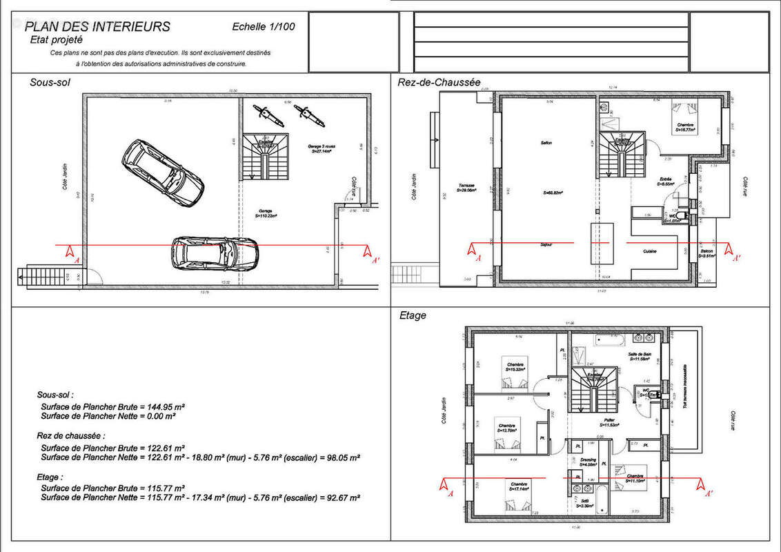
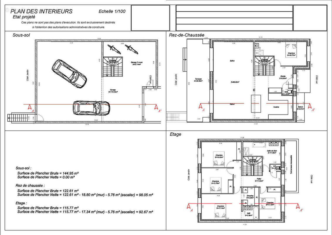
EXCLUSIVITÉ - RARE SUR LE MARCHÉ ! A seulement 13 minutes à pied de la gare, découvrez ce magnifique terrain à bâtir de 616 m² environ, situé en bords de Seine, dans un environnement calme et recherché. Ce terrain non viabilisé est vendu avec un permis de construire accordé pour une maison de 190,72 m² ainsi qu'un sous-sol total avec garage de 110 m². Une opportunité exceptionnelle pour concrétiser votre projet de vie dans un cadre privilégié ! (2.94 % honoraires TTC à la charge de l'acquéreur.)
Voir plus

Honoraires d'agence de 2.94% à la charge de l'acquéreur
Barème des honoraires

Prêt immobilier

Vous souhaitez connaître votre capacité d’emprunt et trouver le meilleur crédit immobilier ?
Réaliser une simulation gratuite

Terrain à SARTROUVILLE
Terrain à SARTROUVILLE
Terrain à SARTROUVILLE
Terrain à SARTROUVILLE
Ce site est protégé par reCAPTCHA la Politique de confidentialité et les Conditions d’utilisation de Google s’appliquent.
Obtenir un prêt immobilier au meilleur taux ?

En poursuivant votre navigation sans modifier vos paramètres, vous acceptez l'utilisation de cookies susceptibles de réaliser des statistiques de visite. Cliquez ici pour plus d'informations