Bénéficiez des services de nos partenaires locaux soigneusement sélectionnés
pour vous accompagner dans votre parcours d'achat immobilier

Ravissant et lumineux Duplex de 53m² Carrez et 88m2 au sol - Excellent état - 2 caves et Jardin privatif - Centre ville - Rue Ar

— Puteaux 92800 —
500 000 €
66 m²
3 pièces

Nos partenaires locaux
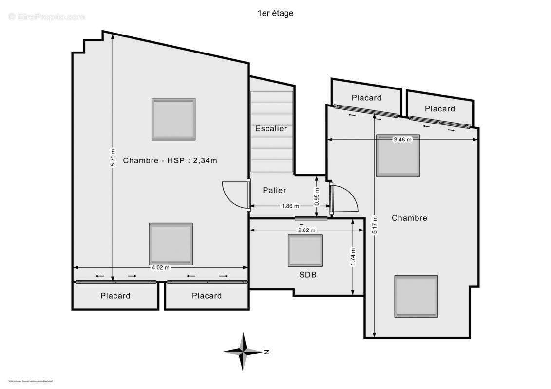
Hosman vous propose à la vente ce très beau 3 pièces en duplex d'une surface de 53 m² Carrez (88m2 au sol), situé rue Arago à Puteaux.
Proximité du métro ligne 1 via la station Esplanade de La Défense ainsi que la gare pour le T2 /Bus/ligne L et U à 10min à pieds.

Vous serez séduits par sa belle pièce de vie avec parquet et cheminée fonctionnelle, son agencement, ses belles prestations et son jardin privatif !

L'appartement est situé au 3ème et dernier étage d'un bâtiment des années 1930 (immeuble de 3 étages).

Le bien se compose :
A l'étage supérieur :
• De deux grandes chambres climatisées de 19m2 et 28m2 au sol, avec rangements.
• D'une salle de bain fonctionnelle avec toilettes, baignoire et double vasque.

A l'étage inférieur:
• D'un charmant et lumineux salon-séjour traversant de 30m2, avec cuisine ouverte entièrement équipée, parquet, cheminée fonctionnelle. Belle exposition Sud-Est.
• De wc séparés avec lave-main.

L'appartement dispose d'un jardin privatif clôturé de 18m2 dans la cour.
Deux caves saines complètent ce bien.

L'appartement est situé au coeur d'un quartier commerçant et résidentiel, à proximité des écoles, crèches et commerces de bouche. L'Esplanade de La Défense se trouve à 9 minutes à pied du bien. De nombreux transports sont situés à proximité (métro ligne 1, tramway T2, bus). La gare de Puteaux (ligne L et U) est à 10min à pied.

Le système de chauffage est électrique, une cheminée fonctionnelle complète le chauffage. A l'étage une climatisation réversible est présente dans les deux chambres.

Les charges de copropriété s'élèvent à 575 € par trimestre. La taxe foncière est de 453€.
La copropriété compte 10 lots.
Le bien est soumis au statut de copropriété.

Hosman s'efforce de réinventer l'agence immobilière en offrant un service innovant et transparent aux acheteurs et aux vendeurs. Nos frais d'agence sont de 9900 euros fixes à la charge du vendeur.
Si vous souhaitez le visiter, choisissez le créneau qui vous convient le mieux et planifiez votre visite en toute autonomie, depuis notre site hosman.co
Voir plus

Référence: 05a4d1
Bien en copropriété. Charges de copropriété : 191 €.
Honoraires à la charge du vendeur.
DPE
A
B
C
D
E
F
G
GES
A
B
C
D
E
F
G
Appartement à PUTEAUX
Appartement à PUTEAUX
Appartement à PUTEAUX
Appartement à PUTEAUX
Appartement à PUTEAUX
Appartement à PUTEAUX
Appartement à PUTEAUX
Appartement à PUTEAUX
Appartement à PUTEAUX
Appartement à PUTEAUX
Appartement à PUTEAUX
Appartement à PUTEAUX
Appartement à PUTEAUX
Appartement à PUTEAUX
Appartement à PUTEAUX
Appartement à PUTEAUX
Géorisques

Les informations sur les risques auxquels ce bien est exposé sont disponibles sur le site Géorisques : www.georisques.gouv.fr

Ce site est protégé par hCaptcha Politique de confidentialité et Conditions d’utilisation s’appliquent.