Bénéficiez des services de nos partenaires locaux soigneusement sélectionnés
pour vous accompagner dans votre parcours d'achat immobilier

Immeuble 3 lots - centre-ville La Tremblade - rendement locatif

— La Tremblade 17390 —
343 900 €
200 m²
1 pièce

Nos partenaires locaux
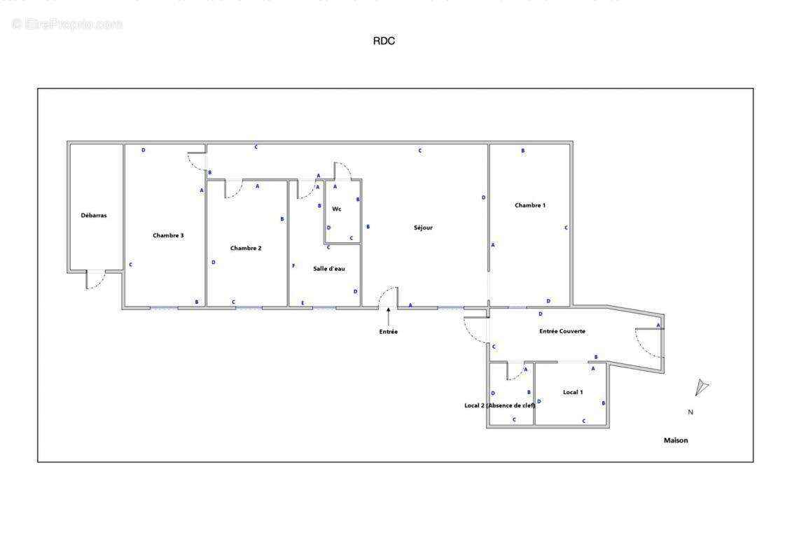
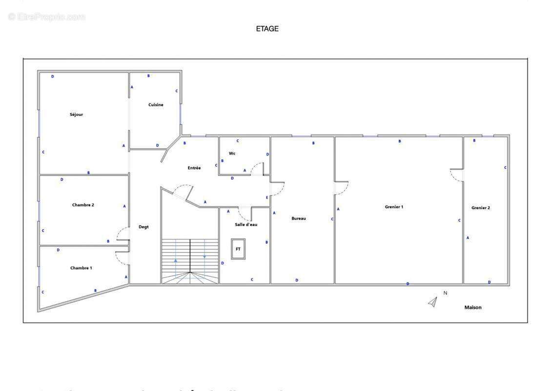
Description : Venez découvrir cet immeuble de rapport idéalement situé en centre-ville de La Tremblade, composé de 3 lots actuellement tous loués, d'une surface totale d'environ 200 m².

Composition :
Lot 1 : Appartement T4 rez-de-chaussée 70 m², loué
Lot 2 : Appartement T4 R+1 70 m², loué
Lot 3 : Local commercial rez-de-chaussée 55 m², loué

Revenus et rendement :
Revenu locatif annuel total : 24588 euros
Idéal pour investisseur cherchant un bien sans travaux majeurs et avec revenus immédiats.

Points forts :
Emplacement central, toutes commodités à proximité
Usage mixte résidentiel + commercial, diversification des revenus
Tous les lots loués, gestion facilitée
Surface globale 200 m², belle taille pour un petit immeuble de rapport

Infos complémentaires :
Prix : 343900 euros honoraires charge vendeur
Taxe foncière : 1514 euros
Etat intérieur : Prévoir éventuellement entretien courant

DPE : classe E GES : classe B
Montant estimé des dépenses annuelles d'énergie pour un usage standard entre 850 euros et 1200 euros indexées aux années 2021, 2022 et 2023
Pour visiter et vous accompagner dans votre projet, contactez Laurent MOURGUET, au [Coordonnées masquées] ou, par courriel à [Coordonnées masquées].
Selon l'article L.561.5 du Code Monétaire et Financier, pour l'organisation de la visite, la présentation d'une pièce d'identité vous sera demandée.
Cette présente annonce a été rédigée sous la responsabilité éditoriale de Laurent MOURGUET agissant sous le statut d'agent commercial immatriculé au RSAC RSAC La Rochelle 418 502 506 auprès de SAS PROPRIETES PRIVEES, au capital de 44 920 euros, ZAC LE CHÊNE FERRÉ - 44 ALLÉE DES CINQ CONTINENTS 44120 VERTOU; SIRET 487 624 777 00040, RCS Nantes. Carte Professionnelle Transactions sur immeubles et fonds de commerce (T) et Gestion immobilière (G) n°CPI 44[Coordonnées masquées]10 388 délivrée par la CCI Nantes - Saint Nazaire. Compte séquestre n°3[Coordonnées masquées] BPA SAINT-SEBASTIEN-SUR-LOIRE (44230). Garantie GALIAN-SMABTP - 89 rue de la Boétie, 75008 Paris - n°28137 J pour 2 000 000 euros pour T et 120 000 euros pour G. Assurance responsabilité civile professionnelle par GALIAN-SMABTP n° de police 28137.J

Mandat réf : 426292 - Le professionnel garantit et sécurise votre projet immobilier.

Laurent MOURGUET (EI) Agent Commercial - Numéro RSAC : RSAC La Rochelle 418 502 506 - .
Les informations sur les risques auxquels ce bien est exposé sont disponibles sur le site Géorisques : www. georisques. gouv. fr
Voir plus

Référence: 426292LAMO
Honoraires à la charge du vendeur.
DPE
A
B
C
D
E
F
G
GES
A
B
C
D
E
F
G
Appartement à LA TREMBLADE
Appartement à LA TREMBLADE
Appartement à LA TREMBLADE
Appartement à LA TREMBLADE
Géorisques

Les informations sur les risques auxquels ce bien est exposé sont disponibles sur le site Géorisques : www.georisques.gouv.fr

Ce site est protégé par hCaptcha Politique de confidentialité et Conditions d’utilisation s’appliquent.

En poursuivant votre navigation sans modifier vos paramètres, vous acceptez l'utilisation de cookies susceptibles de réaliser des statistiques de visite. Cliquez ici pour plus d'informations