Bénéficiez des services de nos partenaires locaux soigneusement sélectionnés
pour vous accompagner dans votre parcours d'achat immobilier

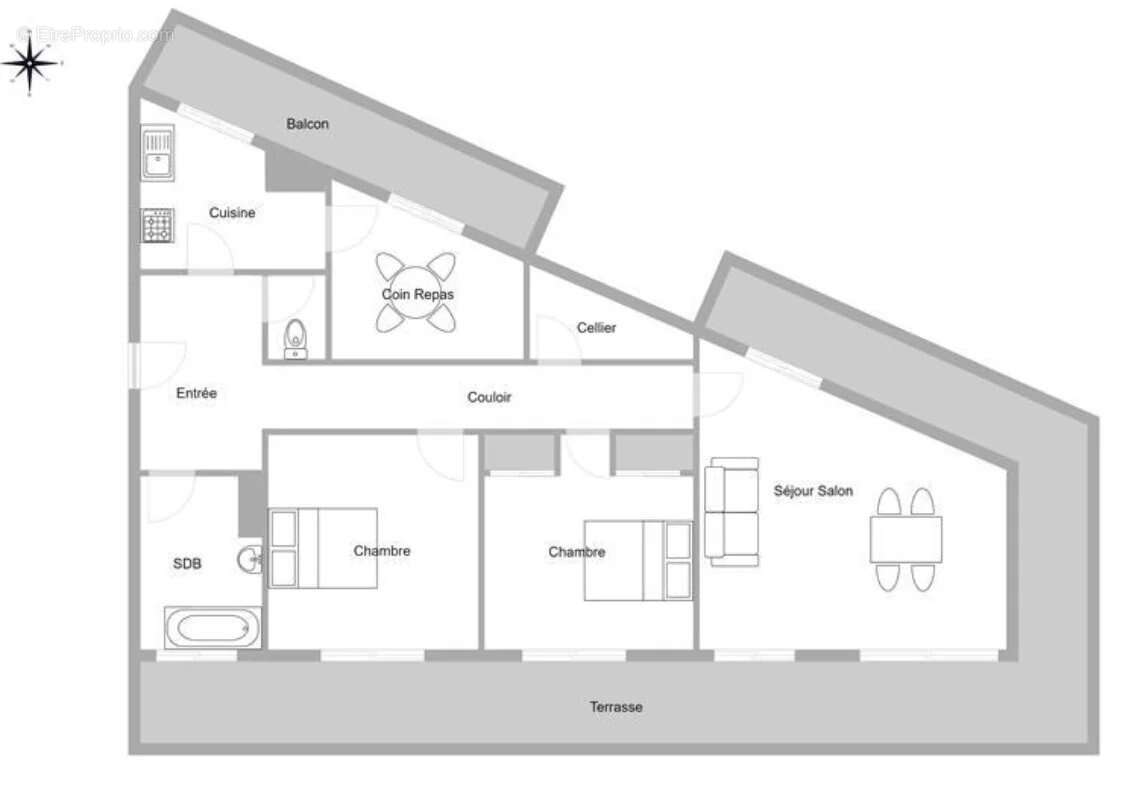
Spacieux 3P d'angle 88m² - Balcon 40 m²

— Le Cannet 06110 —
269 000 €
88 m²
3 pièces
parkingbalcon/terrasse

Nos partenaires locaux
A deux pas des commerces de Rocheville, se cache un 3 pièces d’angle qui joue dans la cour des grands : 88 m² de lumière et un balcon de 40 m² qui galope tout autour de l’appartement.
Ici, pas de murs qui enferment les rêves : tout est en cloisons, prêt à être réagencé selon votre humeur et votre lasso.
Aujourd’hui, le salon de 22,5 m² a été transformé en chambre avec bureau — mais demain, il peut redevenir un vaste saloon pour recevoir les amis.
On y trouve aussi :
Deux vraies chambres de 15 m² chacune (oui, de celles où on peut danser autour du lit),
Une cuisine séparée avec coin repas pour papoter autour du café,
Une salle de bains,
Un cellier,
Et bien sûr, des toilettes (parce qu’on est civilisés, même à l’Ouest).
Les menuiseries sont neuves, double vitrage et volets roulants, histoire de ne pas entendre les coyotes de la ville.
Et pour ranger vos trésors,vous avez une cave de 3 m², plus un stationnement moto à prix d’ami : 15 € le trimestre (oui, tu as bien lu).
Et si votre destrier a quatre roues, vous pouvez acheter le garage de la copro voisine pour 24 000 €.
Luminosité, espace et modularité — un vrai western urbain où chacun écrit son scénario.
Voir plus

Référence: 86386650
Barème des honoraires
DPE
A
B
C
D
E
F
G
GES
A
B
C
D
E
F
G
Appartement à LE CANNET
Appartement à LE CANNET
Appartement à LE CANNET
Appartement à LE CANNET
Appartement à LE CANNET
Appartement à LE CANNET
Appartement à LE CANNET
Appartement à LE CANNET
Appartement à LE CANNET
Appartement à LE CANNET
Appartement à LE CANNET
Appartement à LE CANNET
Géorisques

Les informations sur les risques auxquels ce bien est exposé sont disponibles sur le site Géorisques : www.georisques.gouv.fr

Ce site est protégé par hCaptcha Politique de confidentialité et Conditions d’utilisation s’appliquent.

En poursuivant votre navigation sans modifier vos paramètres, vous acceptez l'utilisation de cookies susceptibles de réaliser des statistiques de visite. Cliquez ici pour plus d'informations