Bénéficiez des services de nos partenaires locaux soigneusement sélectionnés
pour vous accompagner dans votre parcours d'achat immobilier

T3 neuf - pessac madran - pape clément

— Pessac 33600 —
303 900 €
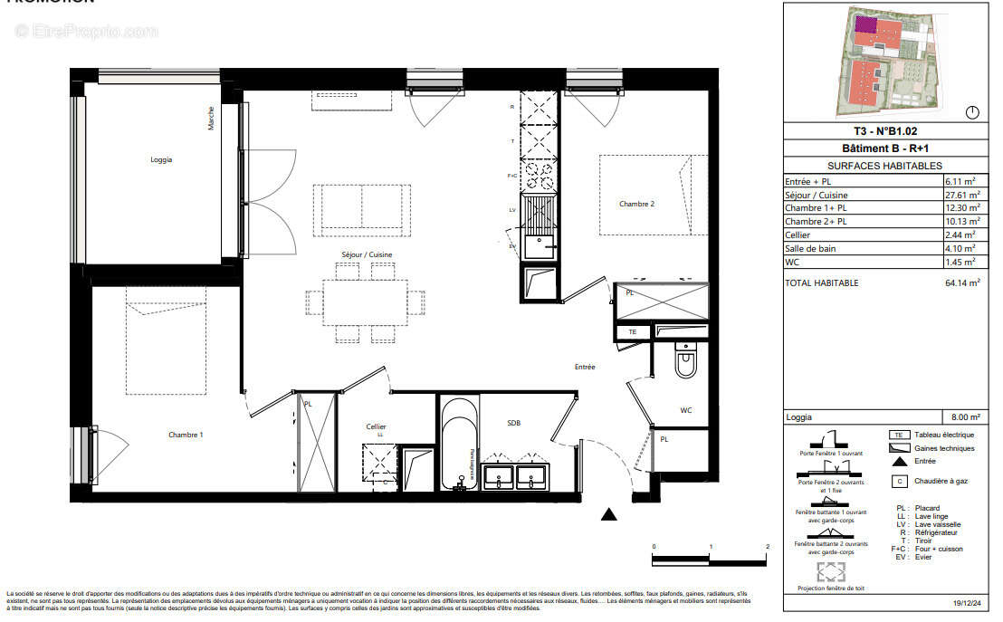
64 m²
3 pièces
parkingbalcon/terrasse

Nos partenaires locaux
Vous recherchez votre futur logement T3 à Pessac dans le quartier Madran,

Découvrez ce T3 dans une résidence neuve qui sera livrée en mars 2027, située à proximitée des écoles, services, commerces et transports. Résidence intimiste de 23 appartements du T2 au T5.
Résidence fermée et sécurisée, espaces verts communs, résidence respectant la RE2020.
Beau T3 de 64 m2 composé d'une entrée avec placard, une pièce de vie, deux chambres avec placard, une salle de bain avec double vasque, WC séparés, et enfin une loggia de 8 m2.
Cuisine à prévoir.
Les prestations : peinture lisse sur les murs et plafaonds, volets roulants électrique dans le séjour, sol stratifié chanfreiné imitation bois dans les chambres et carrelage 45*45 cm pour les séjours et pièces humides.
Système de chauffage individuel par chaudière au gaz.

Frais de notaire réduits.
Prix : 303 900 € Frais d'agence inclus (inclus une remise commeriale de 6000 €),
Honoraires à la charge du vendeur. Ensemble, en confiance
Voir plus

Bien en copropriété.
Honoraires à la charge du vendeur.
Barème des honoraires

Prêt immobilier

Vous souhaitez connaître votre capacité d’emprunt et trouver le meilleur crédit immobilier ?
Réaliser une simulation gratuite

Appartement à PESSAC
Appartement à PESSAC
Appartement à PESSAC
Appartement à PESSAC
Appartement à PESSAC
Appartement à PESSAC
Ce site est protégé par reCAPTCHA la Politique de confidentialité et les Conditions d’utilisation de Google s’appliquent.
Obtenir un prêt immobilier au meilleur taux ?

En poursuivant votre navigation sans modifier vos paramètres, vous acceptez l'utilisation de cookies susceptibles de réaliser des statistiques de visite. Cliquez ici pour plus d'informations