Bénéficiez des services de nos partenaires locaux soigneusement sélectionnés
pour vous accompagner dans votre parcours d'achat immobilier

Monticello - terrain constructible avec permis - vue mer

— Monticello 20220 —
475 000 €
1 508 m²

Nos partenaires locaux
Situé sur les hauteurs de Monticello, ce magnifique terrain d’environ 1 500 m² offre un cadre exceptionnel, niché en haut de la montagne dans un environnement préservé et sans vis-à-vis.

En lisière de zones non constructibles, le terrain bénéficie d’un calme absolu, entouré par la nature, à l’abri de toute nuisance future.
Sa position dominante lui permet de jouir d’une vue mer panoramique à couper le souffle.

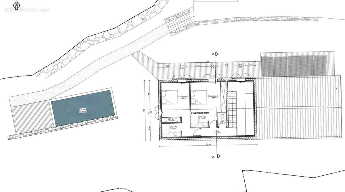
Le projet de construction, avec permis de construire obtenu et purgé de tout recours, prévoit une maison de 166,64 m² habitables en R+1, conçue pour s’intégrer harmonieusement dans le paysage :

Niveau principal (121,91 m²) : une grande pièce de vie, une cuisine, deux chambres, deux salles de bain, un WC invité, une terrasse de 50 m²

Étage (44,73 m²) : deux chambres supplémentaires avec leur salle de bain

Piscine intégrée au projet

Le permis a été validé par l’Architecte des Bâtiments de France, avec possibilité de modifications légères si souhaité.

Ce terrain rare réunit tous les atouts : vue, calme, intimité, potentiel, et un projet architectural déjà prêt à être lancé.

Un bien idéal pour un projet de résidence principale ou secondaire haut de gamme, dans l’un des secteurs les plus recherchés de Balagne.

Bien rare sur le secteur.

Roxane Pellegrini
[Coordonnées masquées]
[Coordonnées masquées]
Voir plus

Référence: 86138082
Barème des honoraires

Prêt immobilier

Vous souhaitez connaître votre capacité d’emprunt et trouver le meilleur crédit immobilier ?
Réaliser une simulation gratuite

Terrain à MONTICELLO
Terrain à MONTICELLO
Terrain à MONTICELLO
Terrain à MONTICELLO
Terrain à MONTICELLO
Terrain à MONTICELLO
Terrain à MONTICELLO
Terrain à MONTICELLO
Terrain à MONTICELLO
Terrain à MONTICELLO
Terrain à MONTICELLO
Terrain à MONTICELLO
Terrain à MONTICELLO
Terrain à MONTICELLO
Terrain à MONTICELLO
Ce site est protégé par reCAPTCHA la Politique de confidentialité et les Conditions d’utilisation de Google s’appliquent.
Obtenir un prêt immobilier au meilleur taux ?

En poursuivant votre navigation sans modifier vos paramètres, vous acceptez l'utilisation de cookies susceptibles de réaliser des statistiques de visite. Cliquez ici pour plus d'informations