Bénéficiez des services de nos partenaires locaux soigneusement sélectionnés
pour vous accompagner dans votre parcours d'achat immobilier

Montluel centre - t3 avec parkings

— Montluel 01120 —
199 900 €
59 m²
3 pièces

Nos partenaires locaux
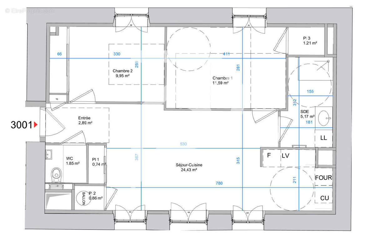
Et si la clé du bonheur était de vivre dans un moulin ? Imaginez votre futur chez-vous dans un cadre préservé à 20km de Lyon, où le charme de l'ancien rénové s'allie au confort du moderne. C'est exactement ce que propose ce programme unique signé Groupe Édouard Denis. A seulement quelques minutes du centre de Montluel, de ses commerces et transports, nous vous présentons cet Appartement T3 de 58,70 m2. Découvrez ses pièces traversantes baignées de lumière : Une entrée avec placards et wc, une cuisine ouverte sur un salon-salle à manger orientée Sud. La partie nuit offre deux chambres avec placards ainsi qu'une salle d'eau fonctionnelle. Et parce que le confort compte aussi à l'extérieur : deux places de parking privatives sont incluses ! En Vente d'Immeuble à Rénover (VIR), vous bénéficiez de toutes les garanties d'un logement neuf tout en profitant du cachet de l'ancien réhabilité. Un emplacement de choix pour une résidence principale ou un investissement patrimonial sécurisé. Fin des travaux : 2ème trimestre 2027. Figure emblématique de Montluel, le Moulin Gervais n'attends plus que vous pour écrire le nouveau chapitre de son histoire. "Le Clos du Moulin" Soumis au régime de la copropriété : étude des charges prévisionnelle en cours 6 LOGEMENTS DISPONIBLES - Du T2 au T4 en duplex avec deux places de stationnement par logement. Les informations sur les risques auxquels ce bien est exposé sont disponibles sur le site Géorisques : www.georisques.gouv. Les plans, visuels et surfaces sont communiqués à titre indicatif et non contractuel. Ils sont susceptibles d'évoluer en fonction des contraintes techniques et administratives. Pour plus d'informations contactez Johanna KRITIKOS (EI- RSAC 904955937) au [Coordonnées masquées] ou l'agence Stéphane Plaza Immobilier de Montluel au [Coordonnées masquées] ou via [Coordonnées masquées]. Vous avez un projet de Vente/Achat? Nous sommes à votre écoute pour vous accompagner, première étape... Bilan stratégique de votre projet ! Copropriété de 24 lots - dont 6 lots habitation.(Pas de procédure en cours).
Voir plus

Référence: SPI2567
Bien en copropriété. Nombre de lots : 24.
Honoraires à la charge du vendeur.
Barème des honoraires

Prêt immobilier

Vous souhaitez connaître votre capacité d’emprunt et trouver le meilleur crédit immobilier ?
Réaliser une simulation gratuite

Appartement à MONTLUEL
Appartement à MONTLUEL
Appartement à MONTLUEL
Ce site est protégé par reCAPTCHA la Politique de confidentialité et les Conditions d’utilisation de Google s’appliquent.
Obtenir un prêt immobilier au meilleur taux ?

En poursuivant votre navigation sans modifier vos paramètres, vous acceptez l'utilisation de cookies susceptibles de réaliser des statistiques de visite. Cliquez ici pour plus d'informations