Bénéficiez des services de nos partenaires locaux soigneusement sélectionnés
pour vous accompagner dans votre parcours d'achat immobilier

Maison 81 m² à Villeneuve-Le-Roi

— Villeneuve-Le-Roi 94290 —
358 000 €
81 m² / 503 m²
5 pièces
parkingbalcon/terrassejardin

Nos partenaires locaux
94290 VILLENEUVE-LE-ROI - CENTRE-VILLE - MAISON 5 PIECES 3 CHAMBRES AVEC TERRASSE – GARAGE - DEPENDANCE - TERRAIN DE 503 M2

José LOPES et Cadio COFFIE conseillers immobilier Efficity, vous proposent cette belle maison à fort potentiel située au cœur de Villeneuve-le-Roi à proximité des commerces, écoles et transports.

Construite en 1930, cette maison individuelle de 78m2 habitable vous offre un cadre de vie idéal, sans mitoyenneté, très bien entretenue. L'environnement est agréable, à proximité des RER C : ABLON & VILLENEUVE LE ROI et bénéficie d'un terrain de plus de 500m2.

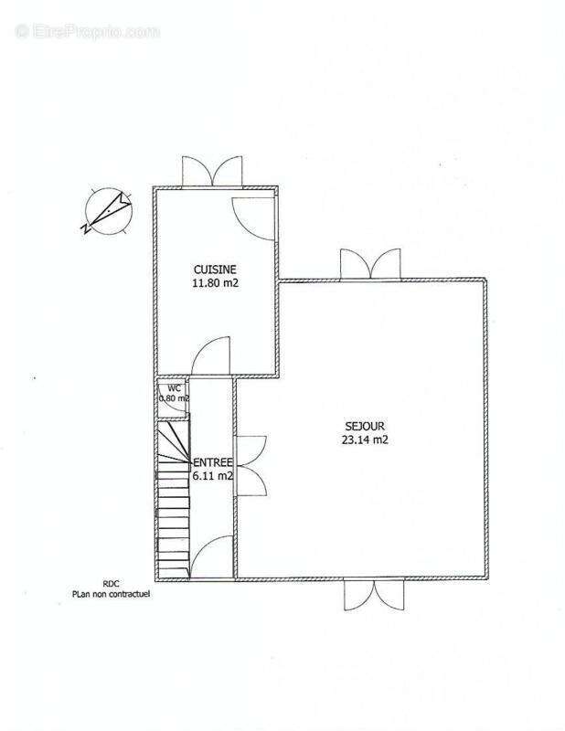
Au rez-de-chaussée, une belle entrée donnant sur un séjour lumineux et traversant de 23m2, une grande cuisine familiale aménagée et équipée qui s'ouvre sur le jardin, des Wc séparés ainsi qu'une terrasse de 30m2 exposée Sud-Ouest, idéale pour profiter des journées ensoleillées.

Le premier étage se compose de deux chambres confortables, d'une salle d'eau, d'un bureau/ dressing et de WC séparés. Les combles d'environ 25m2 sont aménageables en chambre supplémentaire ou bureau, offrant un potentiel supplémentaire à cette charmante maison.

Le sous-sol total de 40m2 est composé d'une grande pièce principale, d'une chambre avec salle d'eau et WC et d'une buanderie. La dépendance de 35m2 au fond du jardin est aménageable avec eau et électricité, la cave à vins, une place de parking extérieur en plus du garage complètent parfaitement ce bien. La toiture en tuile à emboîtement récente, les sols en parquet et la façade en pierre et brique confèrent un cachet authentique à cette maison.

Le terrain de 500m2 est doté d'un puit qui permet d'extraire de l'eau pour arroser tout le jardin. Cette maison accueillante offre de bonnes possibilités d'agrandissements.

Elle sera libre a compter du 1er août 2026

N'attendez plus pour visiter ce bien rare sur le marché ! Contactez moi pour plus d'informations et pour organiser une visite.
Les informations sur les risques auxquels ce bien est exposé sont disponibles sur le site Georisque : georisques. gouv. fr
José Lopes - EI - est Agent Commercial mandataire en immobilier, immatriculé au Registre Spécial des Agents Commerciaux du Tribunal de Commerce de Créteil sous le n°849007232.
Siège social du mandant : effiCity, 48 avenue de Villiers - 75017 PARIS - Société par Actions Simplifiée, société au capital de 132 373,05 euros, immatriculée au RCS Paris 497 617 746 et titulaire de la Carte professionnelle CPI 75[Coordonnées masquées]02 025 - CCI Paris IDF - Caisse de Garantie : GALIAN Assurances 89 rue de la Boétie 75008 Paris
Voir plus

Référence: 193121
Honoraires à la charge du vendeur.
Barème des honoraires
DPE
A
B
C
D
E
F
G
GES
A
B
C
D
E
F
G
Maison à VILLENEUVE-LE-ROI
Maison à VILLENEUVE-LE-ROI
Maison à VILLENEUVE-LE-ROI
Maison à VILLENEUVE-LE-ROI
Maison à VILLENEUVE-LE-ROI
Maison à VILLENEUVE-LE-ROI
Maison à VILLENEUVE-LE-ROI
Maison à VILLENEUVE-LE-ROI
Maison à VILLENEUVE-LE-ROI
Maison à VILLENEUVE-LE-ROI
Maison à VILLENEUVE-LE-ROI
Maison à VILLENEUVE-LE-ROI
Maison à VILLENEUVE-LE-ROI
Maison à VILLENEUVE-LE-ROI
Maison à VILLENEUVE-LE-ROI
Maison à VILLENEUVE-LE-ROI
Maison à VILLENEUVE-LE-ROI
Maison à VILLENEUVE-LE-ROI
Maison à VILLENEUVE-LE-ROI
Géorisques

Les informations sur les risques auxquels ce bien est exposé sont disponibles sur le site Géorisques : www.georisques.gouv.fr

Ce site est protégé par hCaptcha Politique de confidentialité et Conditions d’utilisation s’appliquent.

En poursuivant votre navigation sans modifier vos paramètres, vous acceptez l'utilisation de cookies susceptibles de réaliser des statistiques de visite. Cliquez ici pour plus d'informations